One Owner With Books!
This lovingly cared for and updated family home in the sought after suburb of Modbury Heights has had the same owner for 49 years! Situated on a quiet street on a 780sqm allotment (approximately) with a wide 18.5m (approximate) frontage and surrounded by other quality homes, it is now ready for a new family. Offering a private and secure rear yard with a fabulous undercover entertaining area and the bonus of a workshop, this property will appeal to astute buyers looking to enjoy the lifestyle of this tightly held suburb.
Features that make this home special:
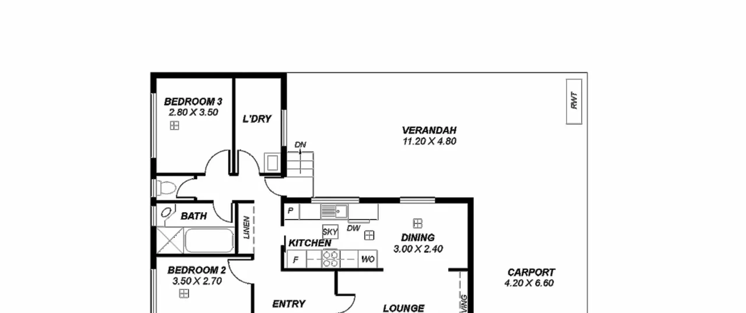
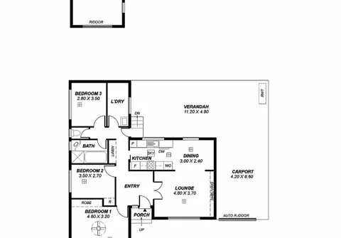
- Spacious master bedroom with ceiling fan and built-in robe
- Generous sized bedrooms 2 and 3, bedroom 2 with built-in robe
- Large lounge with beautiful polished floorboards and built-in shelving
- Pristine, Tasmanian oak Alby Turner kitchen with stone bench top and Asko dishwasher
- Dining area adjacent kitchen
- Immaculate original bathroom with separate bath and shower + separate toilet
- Separate laundry with ample storage space
- Ducted reverse cycle air conditioning with 5 zones
- Huge undercover verandah, perfect for outdoor entertaining
- Carport with high clearance, automatic roller door and drive through access to rear
- Solar hot water system
- Large workshop with light and power
- Garden shed
- Massive rear yard with plenty of room for children and pets to play
- Security shutters
- 3.5kw solar electrical system
Located in the highly sought after suburb of Modbury Heights in a fantastic neighbourhood and only a short distance to all the shopping and entertainment that Tea Tree Plaza has to offer. Public transport including the City via The O-Bahn Interchange, sporting clubs, local parks, Modbury Hospital and a variety of public and private schools are all only a short distance away!
For further information please contact Gordon Little on 0418 824 036 or 8269 7711 (office).
RLA 200591
The Vendor's Statement (Form 1), the Auction Contract and the Conditions of Sale will be available for perusal by members of the public -
(A) at our office located at 434 Montague Road, Modbury North for at least 3 consecutive business days immediately preceding the auction; and
(B) at the place at which the auction is to be conducted for at least 30 minutes immediately before the auction commences.
