Walk to The Heights School!
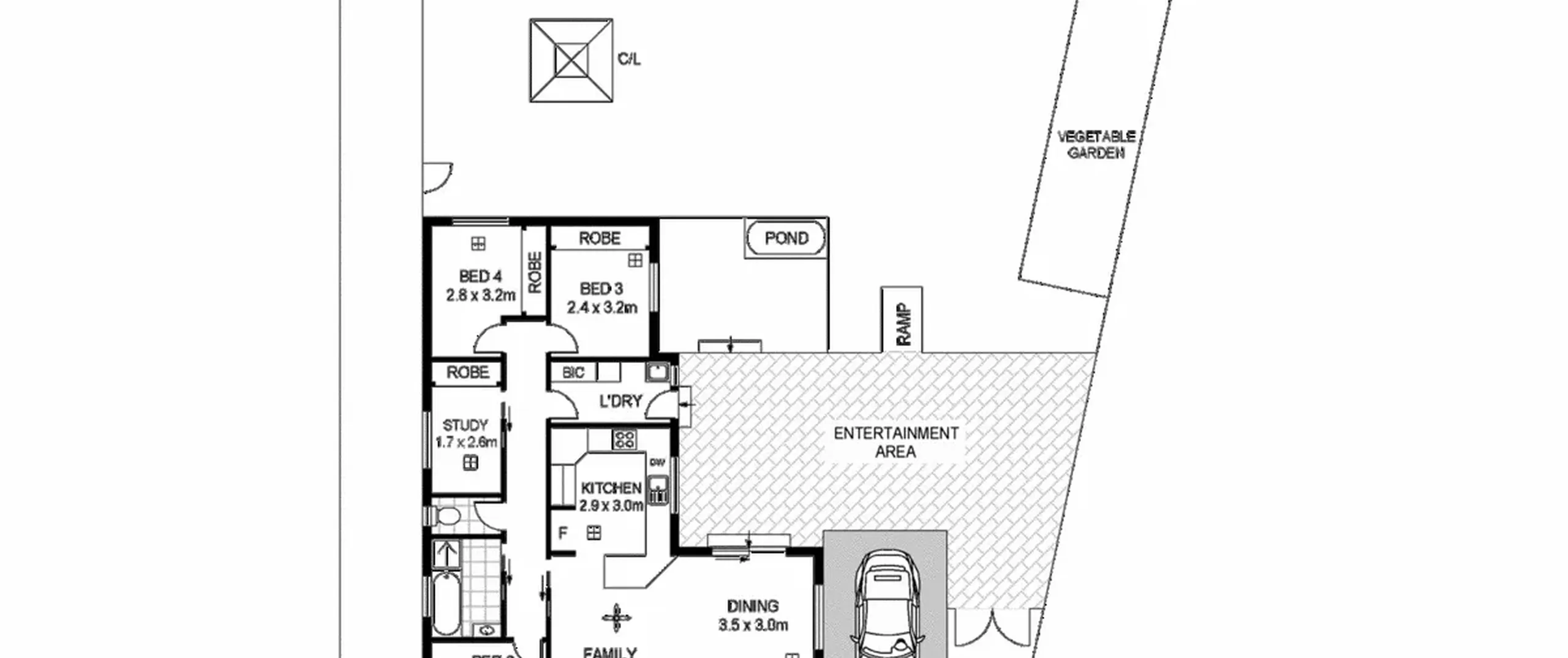
On offer is this delightful 4 bedroom home with tasteful updates throughout including stunning kitchen, modern bathroom and lavish laundry. Featuring neutral décor and a functional floorplan with multiple internal and external living areas, this home is sure to impress!
Features that make this home special:
- Master bedroom with built-in robes, ensuite and ceiling fan
- Spacious bedroom 2, 3 and 4, bedrooms 3 and 4 with built-in robes
- Study with built-in robe
- Large lounge with ceiling fan
- Light filled family and dining room with ceiling fan
- Stunning kitchen with gas cooktop, dishwasher, walk-in pantry and ample bench and cupboard space
- Modern bathroom with separate bath and shower + separate toilet
- Separate laundry with built-in cupboard
- Expansive undercover outdoor entertaining area
- Roller shutters to all bedrooms and living area windows
- Established front and rear yards
- Vegetable garden
- Garden shed and tool shed
- Carport
Situated only a short drive to a variety of local educational facilities, Modbury Hospital and the O'Bahn for easy access to Adelaide CBD. All this and only minutes' drive to all the shopping and entertainment that Tea Tree Plaza has to offer.
This is a great place to live!
For further information please contact Gordon Little on 0418 824 036 or 8269 7711 (office).
RLA 200591
