Welcome Home!
This fastidiously maintained property has been lovingly cared for by its original owners. Situated on a generous parcel of land of approximately 608sqm, the valuable corner block location has side access accommodating storage for the boat or caravan.
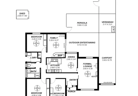
Features that make this home special:
- 3 spacious bedrooms, all with built-in robes and ceiling fans
- Large formal lounge with gas heater, air conditioner and ceiling fan
- Updated kitchen with gas cooktop and ample bench and cupboard space
- Dining area adjacent kitchen with ceiling fan
- Light filled family room with split system air conditioner, ceiling fan and built-in bar
- Modern bathroom with separate bath and shower + separate toilet
- Separate laundry with built-in cupboard
- Garden shed and workshop with light and power
- Rainwater tank
- Solar system
- Expansive undercover outdoor entertaining area
- Low maintenance front and rear yard
- Double length carport with roller door
Situated adjacent the wide open spaces of Hargraves Reserve. Ideally located only minutes’ walk to The Heights School, local shops and many public transport options. All of the shopping and entertainment that Tea Tree Plaza has to offer nearby and easy access to the CBD via the O’Bahn!
Don’t miss this great opportunity to purchase in the popular suburb of Modbury Heights!
For further information please contact Gordon Little on 0418 824 036 or 8269 7711 (office).
RLA 200591
The Vendor's Statement (Form 1), the Auction Contract and the Conditions of Sale will be available for perusal by members of the public -
(A) at our office located at 434 Montague Road, Modbury North for at least 3 consecutive business days immediately preceding the auction; and
(B) at the place at which the auction is to be conducted for at least 30 minutes immediately before the auction commences.
