Opportunity Knocks!
A golden opportunity is available here for the astute buyer. It is rare that you find a large 800sqm (approximate) allotment with a wide frontage. This well-maintained 3 bedroom home would suit the first home buyer looking to enter the property market, the investor requiring a ‘set and forget’ with future development potential (subject to council consent), or the small developer wanting a current project. Whichever option suits you, the property is ideally located with well-established infrastructure such as bus routes, schools and shops all within close proximity.
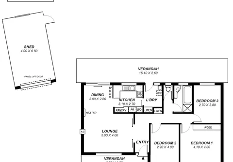
Features that make this home special:
- Large bedroom 1 with built-in robe
- Good sized bedrooms 2 and 3
- Spacious lounge area with air conditioner and heater
- Updated kitchen with ample bench and cupboard space,
- Dining room adjoining kitchen
- Clean and tidy bathroom with separate bath and shower + toilet
- Separate laundry with ample storage space
- Undercover rear verandah, perfect for outdoor entertaining
- Secure, low maintenance rear garden
- Separate garage for secure parking
- Additional off-street parking for up to 5 cars
- Recently achieving a weekly rental return of $350
Located in the highly sought after suburb of Modbury Heights in a fantastic neighbourhood and only a short distance to all the shopping and entertainment that Tea Tree Plaza has to offer. Public transport including the City via The O’Bahn Interchange, sporting clubs, local parks, Modbury Hospital and a variety of public and private schools are all only a short distance away!
Come and see the potential! This is an opportunity you do not want to miss out on!!
For further information please contact Gordon Little on 0418 824 036 or 8269 7711 (office).
RLA 200591
