Fabulous Seaside Family Home!
Smell the sea, feel the breeze, hear the ocean, be at ease with this fabulous family home in the luxurious seaside town of Moana. Entertaining is a breeze with multiple internal living areas and an expansive undercover outdoor entertaining area that overlooks the sparkling in ground swimming pool. With 4 double sized bedrooms, this home is sure to impress the whole family!
Features that make this home special:
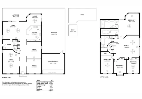
Upper Level -
- Huge master suite with walk-in robe and deluxe ensuite with spa bath
- Double sized bedrooms 2, 3 and 4, all with built-in robes
- Light filled living room with ceiling fans
- Neat and tidy main bathroom with separate bath and shower + separate toilet
Lower Level -
- Large formal lounge with ceiling fans
- Formal dining room
- Timber kitchen with dishwasher, gas cooktop, walk-in pantry and ample bench and cupboard space
- Casual meals area adjacent kitchen with ceiling fan
- Spacious study or additional 5th bedroom
- Great sized family room with ceiling fans
- Valuable powder room downstairs for your convenience
- Separate laundry with built-in cupboards
- Ducted reverse cycle air conditioning throughout
- Expansive undercover outdoor entertaining area with café blinds
- Sparkling salt water, in-ground swimming pool
- Low maintenance front and rear yard
- Garden shed
- Double garage with automatic panel lift door
Set within a short stroll to Moana’s beachfront where sunset views are a must see! All of this and within only a quick drive to all amenities including: Moana Heights Shopping Centre, Seaford Central, public transport options and Seaford Rise Primary School.
For further information please contact Graeme Brown on 0455 111 791 or Jayden Kirk on 0448 225 517 or 8269 7711 (office).
RLA 200591
