2015 Built Home with Nature on your Doorstep!
Conveniently located in The Shoalhaven Estate directly adjacent Dry Creek Reserve is this well presented, double storey and low maintenance abode. Providing a great opportunity for those seeking a family friendly home with a variety of local amenities at their fingertips. Offering a light and bright, flexible floorplan with dual living spaces, three bedrooms and a modern open plan kitchen/dining area that leads out to a cosy outdoor courtyard.
Whether you are looking for your first home to call your own in this highly sought-after area, wanting to downsize close to outstanding local amenities or searching for a quality investment property, then this modern 2015 built home could be the one for you.
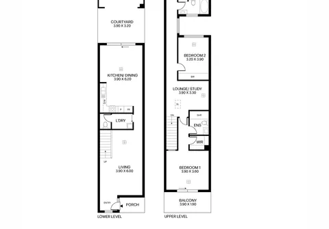
Upper level comprising of:
- Generous master bedroom with walk-in robe, ensuite and private balcony with stunning views
- Good sized bedrooms 2 and 3 both with built in robes
- Lounge/study nook, the perfect space for a home office
- Modern main bathroom featuring separate bath and shower
Lower level comprising of:
- Open plan kitchen and dining room with glass sliding doors flowing seamlessly to the outdoor courtyard
- Light filled lounge room welcomes you upon entry
- Well-presented kitchen complete with dishwasher, gas cook-top and ample bench and cupboard space
- Separate laundry with valuable additional toilet
- Ducted reverse cycle air-conditioning throughout
- Paved courtyard with direct access to the carport
- Carport with automatic lift panel door
Within walking distance to local parks, transport options and walking trails that take you around the picturesque surrounds For complete convenience, it is also in close proximity to popular cafes, shops and a variety of excellent schools, including Endeavour College High School, Mawson Lakes School and Uni SA.
For further information please contact Tom Chapman on 0477 766 739 or 8269 7711 (office).
All information provided has been obtained from sources we believe to be accurate, however, we cannot provide any guarantee and we accept no liability for any errors or omissions (including but not limited to a property's land size, floor plans and size, building age and condition). Interested parties should make their own inquiries and obtain their own legal advice.
RLA 313174
