Contemporary Elegance
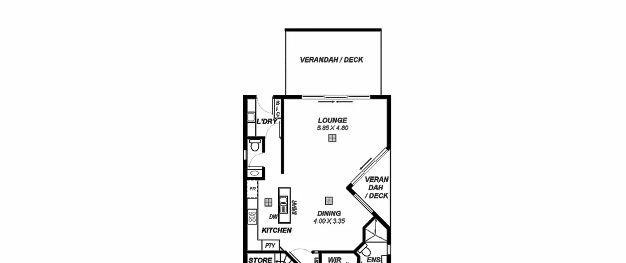
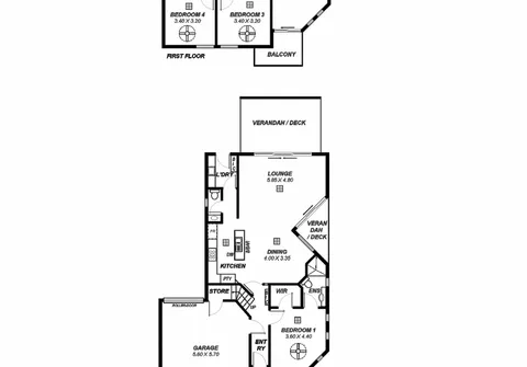
Located in the highly sought after suburb of Mawson Lakes, this master built home by award winning builder Wabnitz Homes showcases style and sophistication. With high quality fixtures and fittings throughout, antique walnut timber-look flooring, high clearance doors and ceilings and on a low maintenance block, this ticks all the boxes for families and executive living. Boasting a versatile floorplan with the advantage of the master bedroom downstairs, this home truly offers a move-in with nothing to do opportunity.
Features that make this home special:
- Large master bedroom with ceiling fan, walk-in robe and ensuite
- Spacious bedroom 2 with built-in robe, storage space and balcony with views of Mawson Lakes and the Hills
- Good sized bedrooms 3 and 4, both with ceiling fan
- Study room
- Spacious, light filled lounge
- Modern, stylish kitchen with 5 burner gas cooktop, stainless steel appliances and island benchtop with breakfast bar
- Dining room adjacent kitchen
- Modern bathroom with separate bath and shower
- Valuable third toilet on lower level
- Separate laundry
- Ducted reverse cycle air-conditioning throughout
- Verandah with timber decking, ideal for outdoor entertaining
- Paved courtyard with low maintenance landscaped gardens
- Security system
- Double garage with automatic roller door and additional storage room
- Drive through access from garage
Ideally located close to local parks, playgrounds, public transport options, Mawson Lakes School and Mawson Lakes Central. Easy access to the Northern Expressway and Mawson Lakes/Gawler Train line Interchange for your convenience.
Be quick for this one!
For further information please contact Graeme Brown on 0455 111 791 or 8269 7711 (office).
RLA 200591
