Immaculate Home in Great Location Ready and Waiting For You!
This beautifully presented family home is perfectly positioned on a corner block allotment in the popular suburb of Mawson Lakes. Featuring a modern elegant style and quality fixtures and fittings throughout, it is perfectly suited to young families and professionals. Boasting a fantastic street appeal, there is nothing to do but simply move in, relax and enjoy this fabulous property!
Features that make this home special:
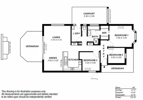
- Master bedroom with split system air-conditioner, walk-in robe and access to two-way bathroom
- Good sized bedrooms 2 and 3, bedroom 3 with split-system air conditioner
- Large living area with split system air-conditioner
- Modern kitchen with ample bench and cupboard space, gas cooktop and breakfast bar
- Dining area adjacent kitchen
- Stylish two-way bathroom with separate bath and shower
- Separate toilet and laundry
- Ample storage options throughout
- Verandah, perfect for outdoor entertaining
- Manicured rear yard with beautiful water feature
- Single carport with automatic roller door and direct internal access
Ideally located only a short distance to Mawson Lakes Interchange, Mawson Lakes School and UniSA. All of this and only minutes away from all the recreational facilities, retail precincts and cafes that Mawson Lakes Central has to offer.
For further information please contact Mark Fricker on 0413 000 845 or 8269 7711 (office).
RLA 200591
