Spacious Unit in Ideal Location
Nestled at the rear of a small group of units, this low maintenance home is positioned perfectly between the city and beach, offering the ultimate lifestyle. Larger than average, this spacious property boasts a practical layout with two bedrooms, one bathroom, a separate living room and well-presented kitchen.
First home buyers will appreciate it as an excellent entry level purchase into an in-demand city fringe area. Private and secure while still spacious makes it perfect for people wanting to downsize and it equally presents a great opportunity for investors looking to add to their current portfolio.
Features that make this home special:
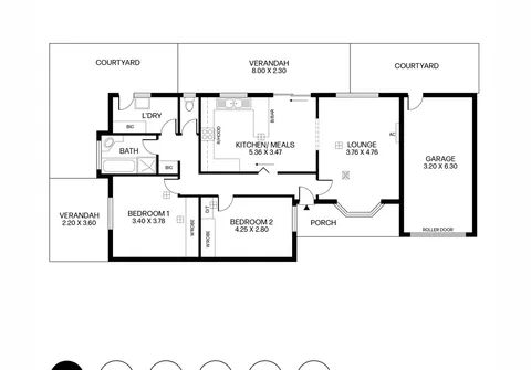
- Spacious bedroom 1 with built-in robe
- Bedroom 2 of good size and complete with built-in robe
- Light filled separate lounge featuring a beautiful bay window and split system air conditioner
- Meals area adjacent kitchen
- Well-equipped kitchen offering a breakfast bar and ample cupboard and bench space
- Neat and tidy main bathroom with bath and separate shower
- Separate toilet
- Practical laundry with built-in cupboard and external access
- Ducted air conditioning throughout
- Verandah entertaining area
- Low maintenance, private courtyard
- Single attached garage with roller door
Situated in a prime location only minutes from the CBD, Adelaide Airport, UniSA, Harbour Town Shopping Centre, public transport options and the Royal Adelaide Hospital. This property is located within the Adelaide High School zone and within the new to be built Botanic High School zone, and is just a short drive to the vibrant Henley Beach Rd shopping and restaurant precinct.
For further information please contact Graeme Brown on 0455 111 791, Andrew Tamburrino on 0447 888 177 or 8269 7711 (office).
All information provided has been obtained from sources we believe to be accurate, however, we cannot provide any guarantee and we accept no liability for any errors or omissions (including but not limited to a property's land size, floor plans and size, building age and condition). Interested parties should make their own inquiries and obtain their own legal advice.
RLA 200591
