Prime Property with Endless Potential
Bursting with potential and boasting a central location, this Mansfield Park home is a blank canvas ready to be transformed. Renovators and investors alike will appreciate the solid foundations this home has to offer while those with plans for the future will appreciate the large 760sqm (approximate) lot.
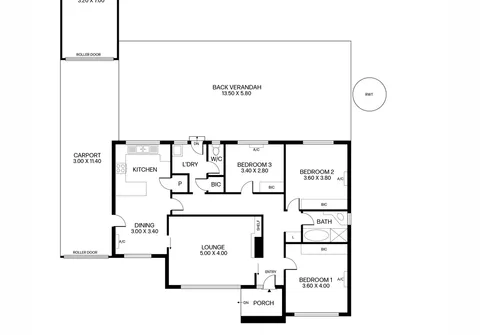
With three bedrooms, one bathroom, a large lounge room and a separate garage or workshop, a flexible layout is already in place. The interior is light and airy with beautiful timber flooring and air conditioning in the bedrooms and dining.
The potential really does seem endless with so much space to be utilised whether it be modernising the existing home, extending to create more space, adding a pool or exploring the option to redevelop ( All Subject to Council Consent).
Features that make this home special:
- Light filled bedroom 1 with built-in robe and split system air conditioner
- Bedrooms 2 and 3, both offering built-in robe and split system air conditioners
- Spacious separate lounge with plenty of natural light
- Dining adjacent kitchen with split system air conditioner and access to backyard
- Practical kitchen with walk-in pantry and ample cupboard and bench space
- Original main bathroom with bath and separate shower
- Separate toilet via laundry
- Laundry with external access
- Large verandah entertaining area
- Fully fenced, low maintenance backyard with rainwater tank
- Double length carport with roller door and drive through access to garage with roller door and workbench
Superbly located only 11kms (approximately) from the Adelaide CBD and only minutes away from all the shopping and entertainment that Arndale Shopping Centre and Churchill Centre has to offer. Regency Park Golf Course, The Parks Recreation and Sports Centre and a variety of local parks are all nearby. Additionally in close proximity to a variety of excellent public and private schools, including Woodville Gardens School and St Patrick's School.
For further information please contact Son Le on 0427 530 946, Kevin Nguyen on 0427 273 590 or 8269 7711 (office).
All information provided has been obtained from sources we believe to be accurate, however, we cannot provide any guarantee and we accept no liability for any errors or omissions (including but not limited to a property's land size, floor plans and size, building age and condition). Interested parties should make their own inquiries and obtain their own legal advice.
The Vendor's Statement (Form 1), the Auction Contract and the Conditions of Sale will be available for perusal by members of the public - (A) at our office located at 78-80 North East Road, Walkerville for at least 3 consecutive business days immediately preceding the auction; and (B) at the place at which the auction is to be conducted for at least 30 minutes immediately before the auction commences.
RLA 200591
