Fantastic Family Entertainer – The Boxes Are Ticked, Just Move In and Enjoy!
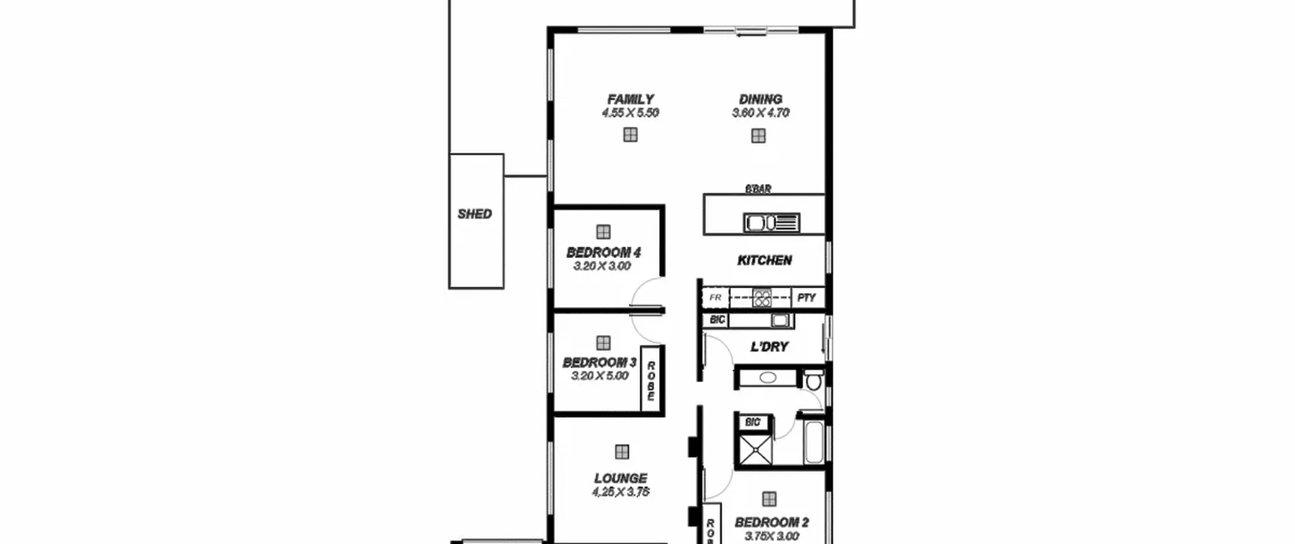
This cleverly designed, spacious family home boasts over 170sqm of internal living space (approximate). Once you step inside, you will notice that the light-filled living areas flow seamlessly to the impressive outdoor entertaining area. Offering a versatile floorplan, this home has an abundance of space that you will want to share with the whole family.
Close by to shopping, schools and recreational facilities including the fabulous "Parks Recreation and Sports Centre". Set on a 513sqm (approximate) allotment, there is nothing to do but simply move in and enjoy the enviable lifestyle this low maintenance, secure and private home offers!
Features that make this home special:
- Huge master bedroom with ceiling fan, walk-in robe and ensuite
- Good sized bedrooms 2, 3 and 4, bedrooms 2 and 3 both with built-in robes
- Valuable detached rumpus room/studio with ceiling fan and air conditioner, ideal for extra living space, home theatre room or a teenager's retreat
- Formal lounge room
- Light-filled open plan family area
- Modern kitchen with gas cooktop, ample bench and cupboard space and breakfast bar
- Large dining area adjacent kitchen
- Tiles to all living areas including rumpus room
- Three way main bathroom with separate bath and shower + separate toilet
- Separate laundry with ample storage space
- Ducted evaporative cooling and ducted gas heating throughout
- Fantastic large undercover Stratco pergola, ideal for entertaining family and friends
- Fully fenced, secure rear yard
- Solar hot water system
- Double garage with automatic roller doors, direct internal entry and direct access to rear
- Additional off-road parking for up to 4 cars
In close proximity to Regency Park Golf Course and The Parks Centre. TAFE SA Regency Campus, quality schools and plenty of public transport options are close by. Conveniently located nearby to Arndale Central Shopping Centre and Woodville North Medical Centre. All this and only 12kms (approximately) to the Adelaide CBD!
For further information please contact Warwick Haseloff on 0499 111 996 or 8269 7711 (office).
RLA 200591
