First Home Buyers! Downsizers! Investors!
First Home Buyers! Downsizers! Investors!
Whether you are looking to move in straight away or capitalize on the rental demand, this near new home will truly impress both the young professional with its great location or investors looking to add to their current portfolio. Set on a low maintenance 280sqm (approximate) allotment this property presents an outstanding lifestyle opportunity boasting convenient living and is not to be missed!
Features that make this home special:
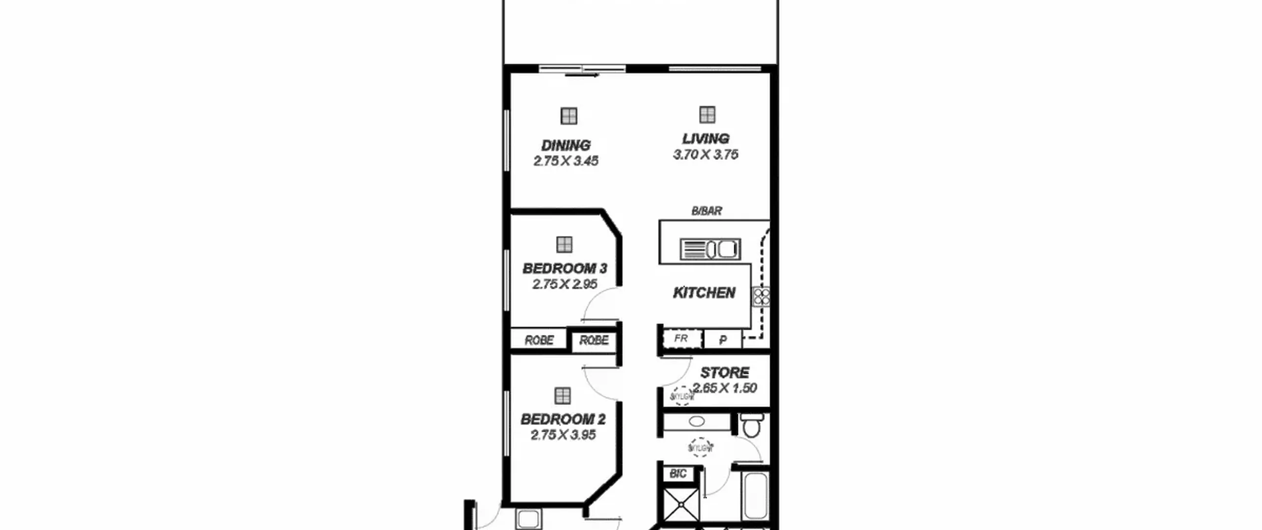
- Master bedroom with walk-in robe and ensuite
- Spacious bedrooms 2 and 3, both with built-in robes
- Light filled living and dining area
- Contemporary kitchen with gas cooktop and ample bench and cupboard space
-Modern bathroom with separate bath and shower + separate toilet
-Store room
- Zoned ducted reverse cycle air conditioning throughout
- Roller shutters to front windows
- Pitched rod verandah with café blinds, ideal for outdoor entertaining
- Garden shed
- Rainwater tank
- Solar Panels
- Low maintenance front and rear yard
- Single garage with laundry facilities, automatic roller door and direct internal and external access
- Currently tenanted for $380 per week until the 25th April 2018
Situated within close proximity to several sporting clubs and facilities, a variety of schools, public transport options and local shops. All of this and only 10.2km (approximately) to the CBD!
For further information please contact Annamaria Varelias on 0487 487 383 or 8269 7711 (office).
RLA 200591
