Family Sized Home on Traditional Sized Allotment!
Advertised Price: $1,200,000 - $1,300,000
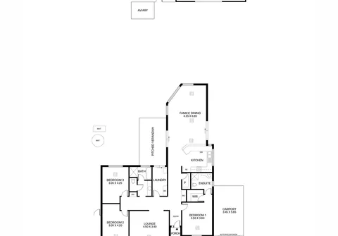
This 2007 built, family sized home is situated on a substantial 780sqm (approximately) traditional sized allotment. Perfectly located in the quiet tree lined streets of Manningham, it could well be the chance you have been waiting for to secure a ready to move into home, in a great near City location.
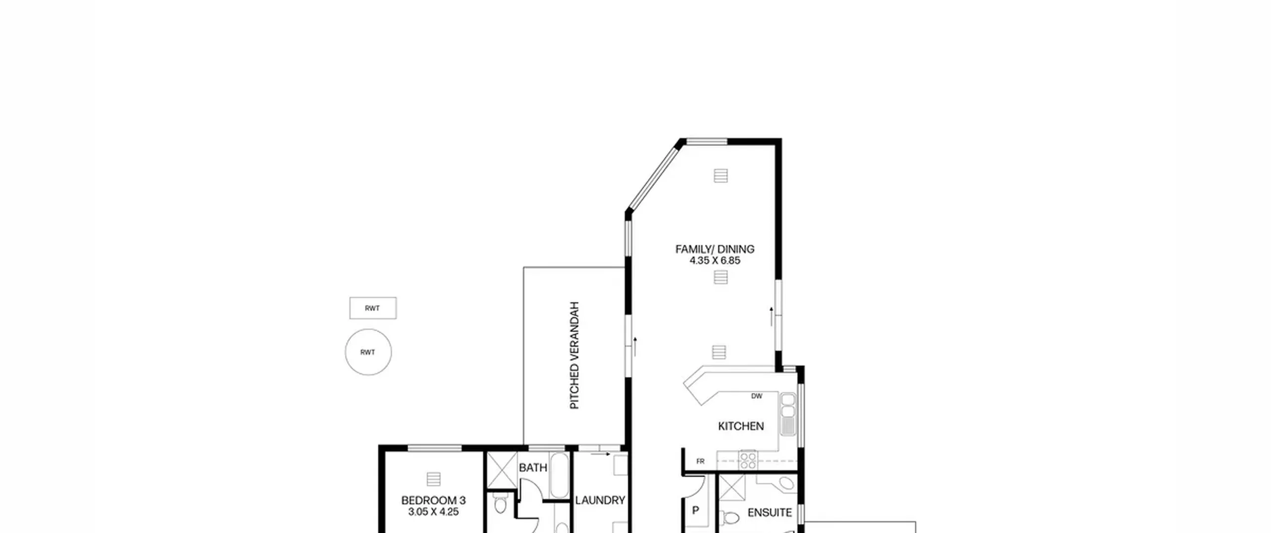
Providing 3 good sized bedrooms including a main bedroom with ensuite and walk in robe. A formal lounge with feature bay window, together with a light filled open plan kitchen, living and dining area provides plenty of room for families to enjoy. The living room flows out to a pitched roof outdoor entertaining space. A secure, fully fenced backyard is enhanced by an 8m x 6m garage with power, multiple rainwater tanks, well maintained garden and lawn area, while a carport with auto roller door completes the offering.
Features that make this home special:
- Main bedroom with ensuite bathroom and walk-in robe
- Good sized bedrooms 2 and 3
- Formal lounge with feature bay window
- Well-appointed kitchen with gas cooktop and dishwasher
- Light filled open-plan family and dining area
- Central bathroom includes a bath, shower, vanity and separate toilet
- Functional laundry with external access to the backyard
- Ducted reverse cycled air conditioning
- Instant gas hot water system
- Pitched roof outdoor entertaining space
- Secure carport with automatic roller door
- Expansive 8m x 6m (approximate) garage with power
- Well maintained garden and lawn area
- 3 x rainwater tanks
- 780sqm block (approximately)
Conveniently located with easy access to public transport, this home is just a short stroll from the sporting and leisure facilities at Laurie Knight Reserve. A quick drive will take you to a range of shopping destinations, including the Walkerville Terrace cafes and shopping centre. All of this, plus you're only 9.3km (approximately) from the CBD, North Adelaide’s vibrant shops, cafés, restaurants and the bustling City Riverbank precinct, including the iconic Adelaide Oval.
All information contained herewith, including but not limited to the general property description, price and the address, is provided to Boffo Real Estate by third parties. We have obtained this information from sources we believe to be reliable; however, we have not verified and do not guarantee its accuracy. The information contained should not be relied upon and you should make your own enquiries and seek advice in respect of this property or any property on this website.
Looking to purchase this property as an investment? Speak to our Property Management team to see how we can assist.
RLA 313174
