Endless Opportunities - 705sqm of Prime Land!
On offer is a fantastic opportunity to secure this large home situated on an impressive 705sqm (approximately) allotment with a 16.76m frontage (approximately) in an extremely popular and in demand near city location. In its original condition, well maintained and loved by the previous owner. Boasting spacious internal living areas, 3 good sized bedrooms and extensive rear yard with a garage/workshop.
This home will appeal to the most astute buyers. Renovate and add value, restore and rent out, redevelop and renew, the choice is yours (all subject to council consent)!
Set in a quiet street surrounded by other quality homes and within easy walking distance to local parks, shops and cafés.
Features that make this home special:
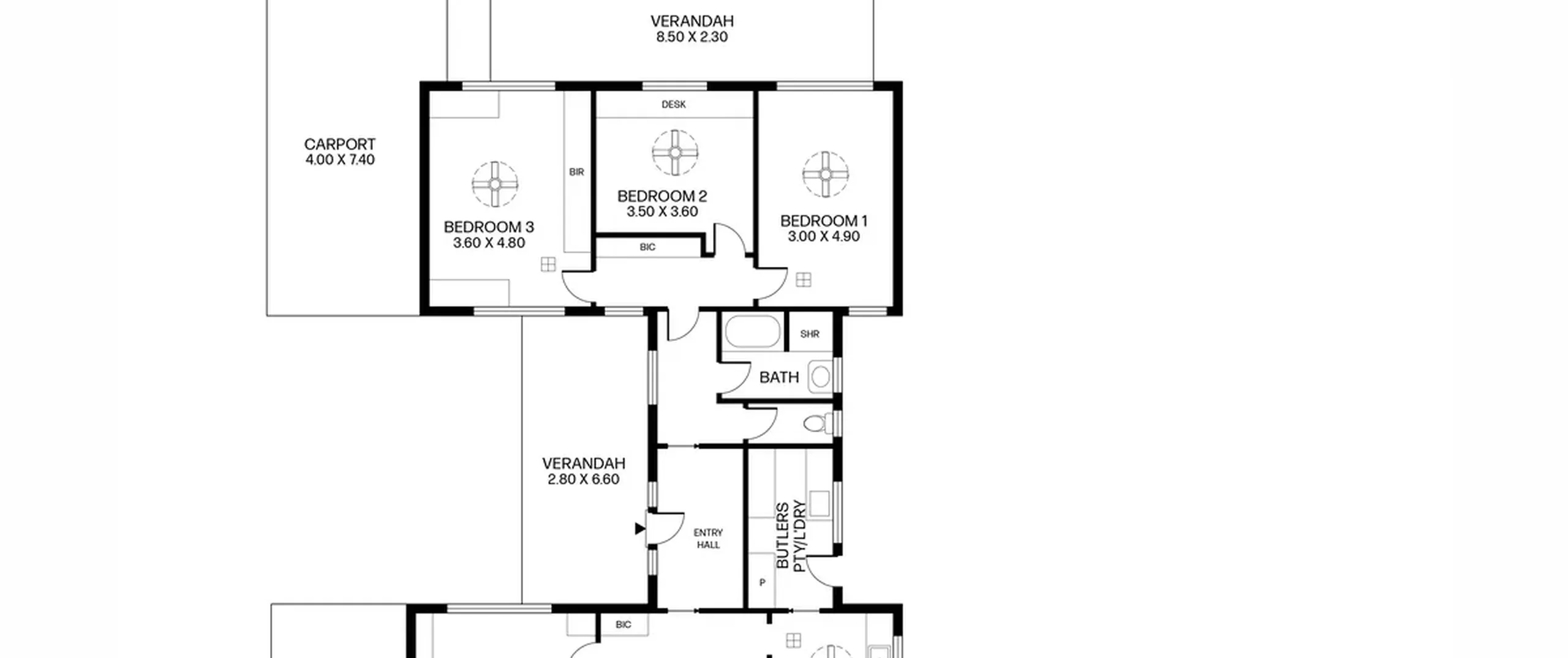
- Three good sized bedrooms, all with ceiling fans; bedroom 2 complete with in-built desk and bedroom 3 with built-in robes + additional storage
- Large lounge room with ceiling fan and gas heater
- Separate dining room with built-in cabinetry
- Immaculate kitchen with dishwasher, gas cook top, ceiling fan and ample cupboard and storage space
- Butler’s pantry/laundry facility off the kitchen and with access to exterior
- Original bathroom with separate bath and shower
- Separate toilet for convenience
- Ducted air conditioning throughout
- Upper storage room
- Expansive carport with space for multiple cars + additional garage/workshop with roller door
- Store room in garage, perfect for additional storage
- Spacious verandah at entry, making it the perfect space for your morning coffee
- Verandah at rear
Ideally located in the highly sought after suburb of Magill close to a variety of quality public and private schools, UniSA Magill Campus, Romeo’s Foodland, St Bernards Fruit and Veg Market and public transport options. All of this and only a short drive from all the shopping and entertainment options that Magill Road and The Parade have to offer.
For further information please contact Paul Leombruno on 0439 160 161, Fadi Oudih on 0455 999 007 or 8269 7711 (office).
RLA 200591
The Vendor's Statement (Form 1), the Auction Contract and the Conditions of Sale will be available for perusal by members of the public -
(A) at our office located at 87 North East Road, Collinswood for at least 3 consecutive business days immediately preceding the auction; and
(B) at the place at which the auction is to be conducted for at least 30 minutes immediately before the auction commences.
