A Prime Inner-West Lifestyle and Location Awaits!
Nestled within the highly regarded, cosmopolitan, seaside suburb of Lockleys is this easy-care ground-floor unit perfect for a wide range of astute buyers. Investors, first-time homeowners, or those simply craving relaxed living in a sought-after location, directly next door to the popular Mellor Park can’t go past this rare offering.
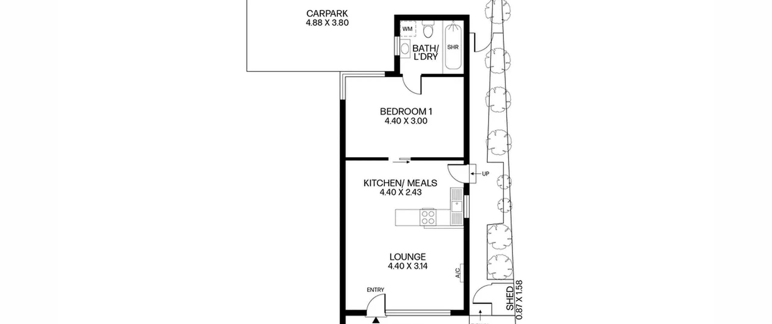
As you step inside you are greeted by the airy lounge room with air conditioning and seamless flow to the functional kitchen and meals area. The practical floorplan offers one bedroom and one bathroom with laundry facilities. Outside, you will find a private courtyard while a secure car space is easily accessible.
This move-in-ready abode exudes a warm and welcoming energy and is perfectly nestled amongst all the action on Henley Beach Road. Popular restaurants, cafes and shops are at your fingertips, while the local bus stop, supermarket and a host of schools are also close by. You can walk to the local cafe while quick access to major roads places you 7kms (approximately) to the Adelaide CBD.
Features that make this home special:
- Large bedroom with direct access to the bathroom and an abundance of natural light
- Polished Jarrah floorboards throughout
- Light-filled lounge to welcome you home, complete with split system air conditioner
- Practical kitchen with standalone gas cooktop and oven, complete with functional storage space
- Timeless main bathroom with laundry facilities
- Low-maintenance courtyard with side access which is lockable for extra security
- Single car space
- Zoned for Lockleys Primary School and Lockleys North Primary School
- Unit nestled on a spacious 107sqm (approximate)
Ideally located only 5km (approximate) to Henley Beach, offering an array of shops and restaurants at the highly popular Henley Square. Easy access to public transport and nearby to a variety of quality schools including Star of The Sea School, Fulham Gardens Primary, Saint Michael's College and Henley High School. Adelaide Airport is conveniently only a short 4 minute (approximate) drive away and the CBD is within easy reach and located only 7kms (approximate) away! This is a great entry point into the rising Adelaide market or an opportunity to expand your property portfolio, so don’t miss out!
For further information please contact Fadi Oudih on 0455 999 007, Paul Leombruno on 0439 160 161 or 8269 7711 (office).
All information contained herewith, including but not limited to the general property description, price and the address, is provided to Boffo Real Estate by third parties. We have obtained this information from sources we believe to be reliable; however, we have not verified and do not guarantee its accuracy. The information contained should not be relied upon and you should make your own enquiries and seek advice in respect of this property or any property on this website.
RLA 313174
