Refined Lifestyle on Parna Lane!
Experience an elevated lifestyle in this recently built, two-bedroom home featuring contemporary finishes throughout. Perfectly positioned near parks and walking trails, it offers a serene backdrop for everyday living.
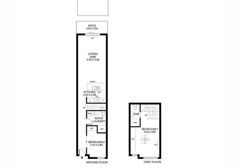
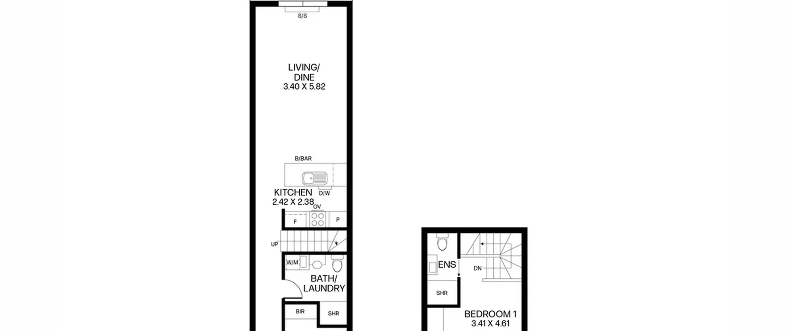
Upstairs, the spacious master bedroom features a private ensuite and built-in robe, offering a peaceful retreat with a picturesque outlook over Patta Avenue Playground.
Downstairs you’ll find the second bedroom and modern main bathroom. An open-plan, light-filled kitchen, living and dining area boasts soaring high ceilings and flows effortlessly into a welcoming courtyard with a patio - ideal for entertaining guests or savouring peaceful mornings. The low-maintenance yard ensures you’ll have more time to unwind and spend less time on upkeep.
The contemporary kitchen combines style and practicality, featuring stainless steel appliances and stylish pendant lighting - making meal preparation a pleasure. Additional highlights include a cleverly designed European laundry and a secure carport with convenient rear lane access.
Everything you need is here—ready for you to unpack, settle in, and relax.
Lower level comprising:
- Soaring high ceilings
- Spacious and bright open plan living, meals and kitchen
- Stylish kitchen with stainless steel appliances including gas cooktop, oven and dishwasher and pendant lighting above bench
- Bedroom two with a built in-robe and windows fitted with double roller day-night blinds
- Convenient bathroom downstairs with shower and provisions for a washing machine
- Low-maintenance courtyard
- Undercover patio area with outdoor blind
- Single carport with panel lift door and rear lane way access
Upper level comprising:
- Light filled master bedroom suite with private ensuite, built-in robe, ceiling fan, windows fitted with double roller day-night blinds and custom-made floor-to-ceiling curtains
Additional features:
- Ducted air-conditioning throughout
Lightsview has been thoughtfully planned to offer both convenience and a sense of openness, featuring pedestrian-friendly pathways, over 15 hectares of local parks and public reserves, as well as easy access to public transport and cycling routes. Ideally situated near Northgate Shopping Centre and a selection of top-quality public and private schools, this location combines lifestyle and accessibility. Enjoy being just 7.1km (approximately) from the lively cafés and shopping of North Adelaide and the scenic Adelaide Oval River precinct, with the CBD just 10.2km away (approximately).
All information contained herewith, including but not limited to the general property description, price and the address, is provided to Boffo Real Estate by third parties. We have obtained this information from sources we believe to be reliable; however, we have not verified and do not guarantee its accuracy. The information contained should not be relied upon and you should make your own enquiries and seek advice in respect of this property or any property on this website.
Looking to purchase this property as an investment? Speak to our Property Management team to see how we can assist.
RLA 313174
