Investment Opportunity in Prime Location with Secure Income Stream!
Secure investment with long term DHA lease in place. Please note: open inspections will be private viewings arranged by appointment.
Lease details:
- Current weekly rent: $555.00 per week
- Lease end date: 4th April 2029
Elevate your property portfolio with this high-quality home, which comes with the added advantage of a long-term tenant already in place, ensuring an immediate return on your investment.
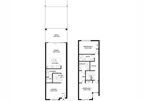
The functional layout features two good-sized bedrooms, two bathrooms, an additional powder room downstairs and a single carport, providing a comfortable and low-maintenance lifestyle. The heart of the floorplan is the open-plan and light-filled kitchen and dining/living area with high ceilings offering a welcoming space for relaxation and entertainment.
Through sliding doors, the dining space seamlessly extends to the patio and low maintenance courtyard, the perfect spot to enjoy a morning coffee or to wind down in the evening. Alternatively, a few steps from the front door lies a leafy, green reserve.
Seize this opportunity to secure a valuable asset in a sought-after location and start reaping the rewards.
Lower level comprising:
- Lounge room upon entry
- Open plan kitchen and dining
- Modern white kitchen with island bench breakfast bar, gas cooktop and oven
- Convenient powder room
- Laundry with storage and provision for washer
- Additional store tucked underneath the stairs
- Low-maintenance courtyard with artificial lawn and garden beds
- Undercover patio
- Single carport with auto panel lift door and rear lane way access
- Rainwater tank
Upper level comprising:
- Spacious master bedroom with mirrored built-in robe, additional walk-in robe and private ensuite with shower and toilet
- Good-sized second bedroom with built-in robe positioned beside the main bathroom
- Main bathroom with shower and toilet
- Study/retreat area
- Linen cupboard providing additional storage
Lightsview has been carefully designed with attention to convenience and open spaces, incorporating pedestrian linkages, 15 hectares of local parks and public reserves, public transport and cycling routes. Located close to Northgate Shopping Centre and a variety of excellent public and private schools. All this and only 7.5km (approximately) to all the cafes and shopping North Adelaide has to offer and the vibrant Adelaide Oval River precinct and 9km (approximately) to the CBD.
All information contained herewith, including but not limited to the general property description, price and the address, is provided to Boffo Real Estate by third parties. We have obtained this information from sources we believe to be reliable; however, we have not verified and do not guarantee its accuracy. The information contained herewith should not be relied upon and you should make your own enquiries and seek advice in respect of this property or any property on this website.
RLA 313174
