Your Oasis Awaits: Stylish and Comfortable Three-Bedroom Home in Lightsview!
This stunning townhouse offers modern living in the vibrant, highly sought-after community of Lightsview. Designed with impeccable style and thoughtful attention to detail, this home is sure to impress a wide variety of house-hunters. Conveniently located within walking distance to the serene lake, the popular Jibbi & Co café and to the bus stop on East Parkway for easy access to the CBD, additionally a short drive to Cedar College.
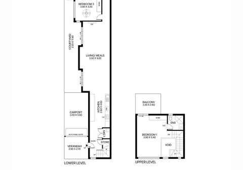
The ground floor features an on-trend kitchen and generous open-plan living and dining area boasts high raked ceilings and tall glass sliding doors that open to an attractive courtyard with artificial lawn. This floor also includes the main bathroom and two good-sized bedrooms, along with a private, low-maintenance courtyard perfect for relaxation and entertainment.
The upper private mezzanine level is dedicated to a massive master bedroom, complete with a large built-in mirrored robe, ensuite facilities, split system air conditioning, and a private balcony.
Whether you’re a first-time buyer, a downsizer, or an investor searching for a valuable property, this townhouse ticks all the boxes. Don’t miss out on the chance to own a quality residence in this stunning location.
Features that make this home special:
- Private upper-level master mezzanine with built-in robe, ensuite, split system air-conditioning and your very own balcony
- Bedrooms 2 and 3 of good size, both complete with built-in robes
- Light-filled open-plan living, meals and kitchen area featuring a built-in entertainment unit with glass sliding doors leading out to the courtyard
- Stylish kitchen complete with dishwasher, gas cooktop, ample cupboard and bench space and breakfast bar
- Contemporary main bathroom
- European laundry for convenience
- Additional storage
- Private outdoor courtyard with artificial turf, perfect to enjoy on a balmy summer night with friends and family
- Single carport with shelving and automatic panel lift door
- Ziptrak Blinds installed between carport and courtyard
- 1.5kw solar system
- Security cameras
- Smart lock system located on the front door and screen door
The suburb of Lightsview has been carefully designed with attention to convenience and open spaces, incorporating pedestrian links, 15 hectares of local parks and public reserves, public transport and cycling routes. Located close to Northgate Shopping Centre and a variety of excellent public and private schools. All this and only 7km (approximately) to all the cafes and shopping North Adelaide has to offer and the vibrant Adelaide Oval River precinct and less than 9km (approximately) to the CBD.
All information contained herewith, including but not limited to the general property description, price and the address, is provided to Boffo Real Estate by third parties. We have obtained this information from sources we believe to be reliable; however, we have not verified and do not guarantee its accuracy. The information contained should not be relied upon and you should make your own enquiries and seek advice in respect of this property or any property on this website.
RLA 313174
