Comfortable, Contemporary and Centrally Located!
This delightfully designed and immaculately presented home is nestled within a tranquil Lightsview enclave within close proximity to parks, playgrounds, great local cafés and endless walking paths. A host of on-trend finishes are on show throughout the two-storey layout, offering the lucky new owners a chance to simply unpack and make themselves at home.
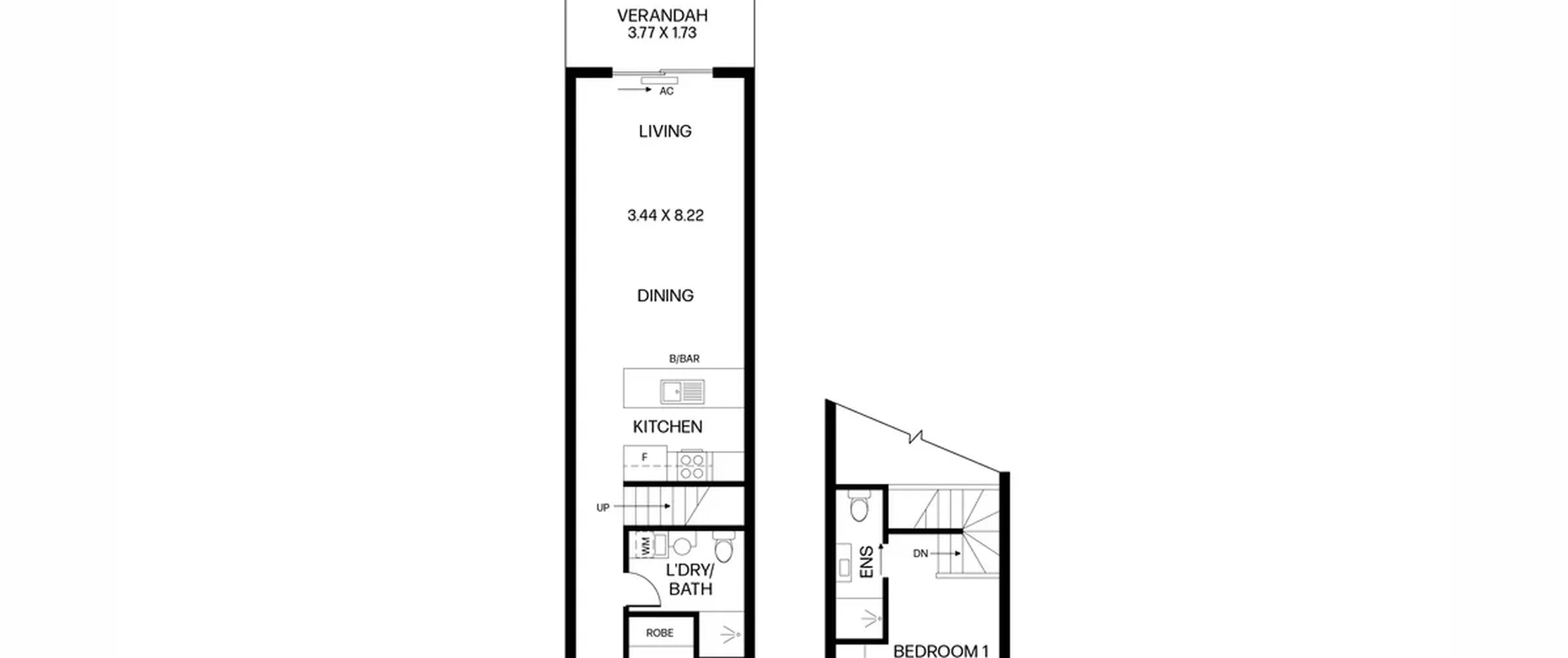
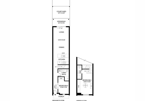
The easy-care and functional floorplan boasts a bright and inviting ambiance throughout. Upon entry, be greeted by modern flooring which leads you through the light-filled living space which is complimented by high lofty ceilings. The sleek kitchen is set in the heart of the layout so the promising chef can always be a part of the action, while the combined living and dining room allows easy access to the peaceful and private outdoor entertainer’s space.
The upper level houses a lofty private master suite with split-system air-conditioning, built-in robe and an ensuite while an additional guest bedroom is conveniently set on the ground floor.
Buyers are sure to enjoy what this desirable address and beautiful surrounds have to offer. Whether you are seeking a quality first home within an in-demand area, wanting to downsize close to outstanding local amenities, or looking for a solid investment property, then this stylish abode is the one for you!
Features that make this home special:
- Large master bedroom on private upper level with split system air-conditioner, built-in robe, ceiling fan and ensuite
- Bedroom two with built-in robe and double sliding doors
- Light-filled open plan living and dining area with air-conditioner and sliding door access to the courtyard
- Modern and stylish kitchen with stainless steel appliances including dishwasher, gas cooktop, ample cupboard space and sweeping benchtops with breakfast bar with feature pendant lighting
- Modern bathroom with laundry facilities
- Paved undercover verandah in a private courtyard
- Single carport to rear of the property with panel lift door
- Neutral, modern décor throughout
The suburb of Lightsview has been carefully designed with attention to convenience and open spaces, incorporating pedestrian linkages, 15 hectares of local parks and public reserves, public transport and cycling routes. Located within walking distance to the newly built Lightsview Sports Centre, close to Northgate Shopping Centre and a variety of excellent public and private schools. All this and only 7km (approximately) to all the cafes and shopping North Adelaide has to offer and the vibrant Adelaide Oval River precinct and less than 9km (approximately) to the CBD.
For further information please contact Fadi Oudih on 0455 999 007, Paul Leombruno on 0439 160 161 or 8269 7711 (office).
All information contained herewith, including but not limited to the general property description, price and the address, is provided to Boffo Real Estate by third parties. We have obtained this information from sources we believe to be reliable; however, we have not verified and do not guarantee its accuracy. The information contained should not be relied upon and you should make your own enquiries and seek advice in respect of this property or any property on this website.
RLA 313174
