Low-Maintenance Lifestyle Opportunity in Lightsview!
Advertised Price: $800,000 - $850,000
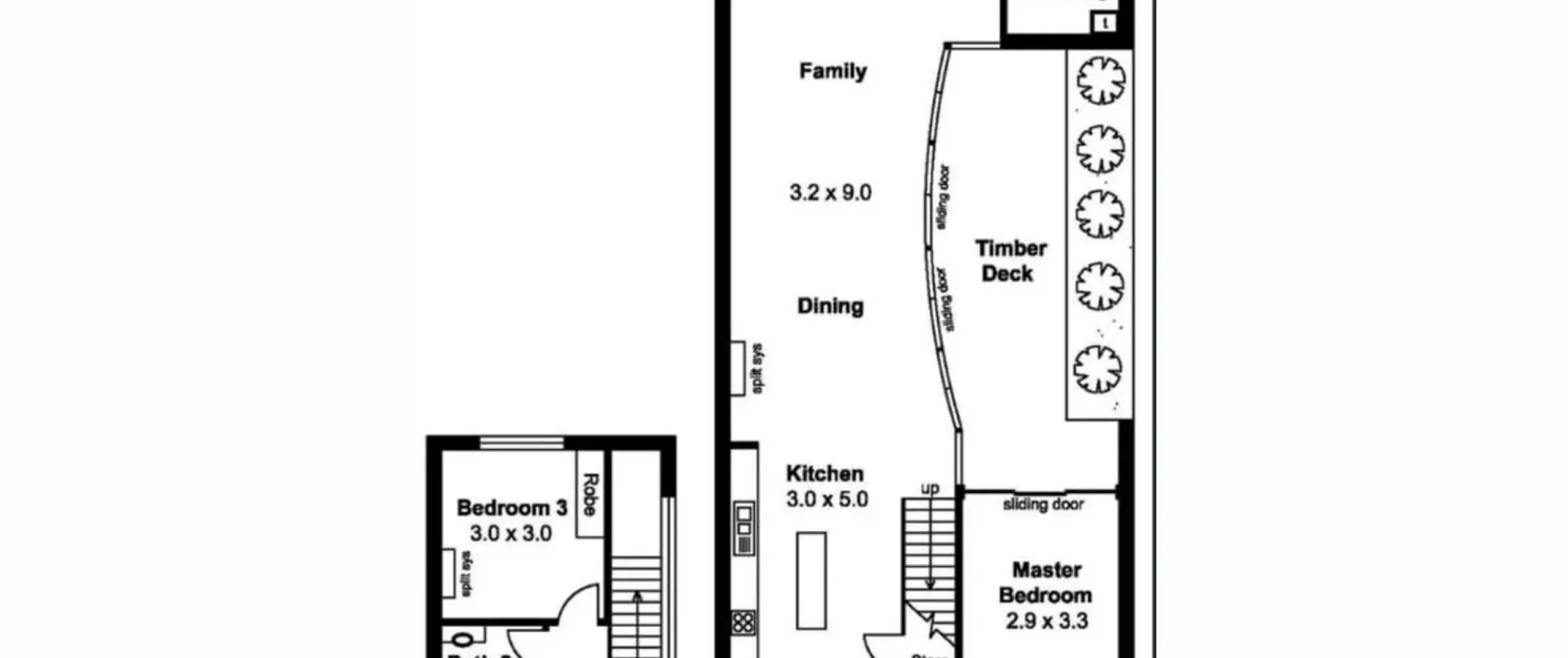
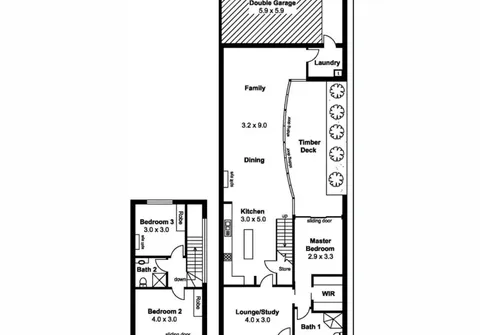
Discover modern, low-maintenance living in the heart of Lightsview. This stylish and contemporary home is designed for comfort and convenience, offering a functional layout ideal for professionals, families or investors. With the master suite positioned downstairs and spacious open-plan living at the rear, the home effortlessly combines privacy with connected living.
Designed by Max Pritchard, renowned for the KI Southern Ocean Lodge, this home maximises natural light and seamless indoor–outdoor living. Environmentally conscious with recycled water, solar panels and passive lighting, it sits on a rare 200sqm (approximate) elevated allotment with views to the Adelaide skyline and hills. OptiComm FTTP ensures ultra-fast internet up to 1 Gbps.
The bright and airy kitchen, living and dining area forms the perfect central hub, while the low-maintenance courtyard with quality decking provides an inviting space to relax or entertain. A dedicated study at the front of the home adds flexibility, making it easy to work from home or create a quiet reading nook.
Features that make this home special:
- Spacious master bedroom downstairs with walk-in robe and ensuite
- Bedrooms 2 and 3 upstairs, both with built-in robes
- Light-filled open-plan kitchen, living and dining area
- Modern kitchen with gas cooking, dishwasher and island bench
- Study area at the front of the home
- Low-maintenance rear courtyard with decking – perfect for entertaining
- Double garage with automatic panel door
- Split-system air conditioning to all bedrooms, living and dining
Lightsview is a thoughtfully planned community designed for ease of living, with extensive pathways, over 15 hectares of parks and reserves, and convenient public transport and cycling links. It’s a short walk to Northgate Shopping Centre and Lightsview Village, including Drakes, Woolworths, eateries and cafés, and close to the Lights Recreation Centre, Adventure Playground, tennis courts, lakes and local parks. With quality schooling options nearby and just 7km (approximately) to North Adelaide and under 9km (approximately) to the CBD, it offers outstanding lifestyle convenience.
Please Note: Photos may not accurately reflect the current condition or features of the property.
All information contained herewith, including but not limited to the general property description, price and the address, is provided to Boffo Real Estate by third parties. We have obtained this information from sources we believe to be reliable; however, we have not verified and do not guarantee its accuracy. The information contained herewith should not be relied upon and you should make your own enquiries and seek advice in respect of this property or any property on this website.
Looking to purchase this property as an investment? Speak to our Property Management team to see how we can assist.
RLA 313174
Enquire about this property
