Sophisticated Apartment With Sweeping City and Hills Outlooks
Set high above the growing Lightsview landscape, this stylish apartment delivers a refined lock up and leave lifestyle with captivating views in every direction. Young professionals, first home buyers and investors will appreciate the easy living design, bright interiors and impressive privacy.
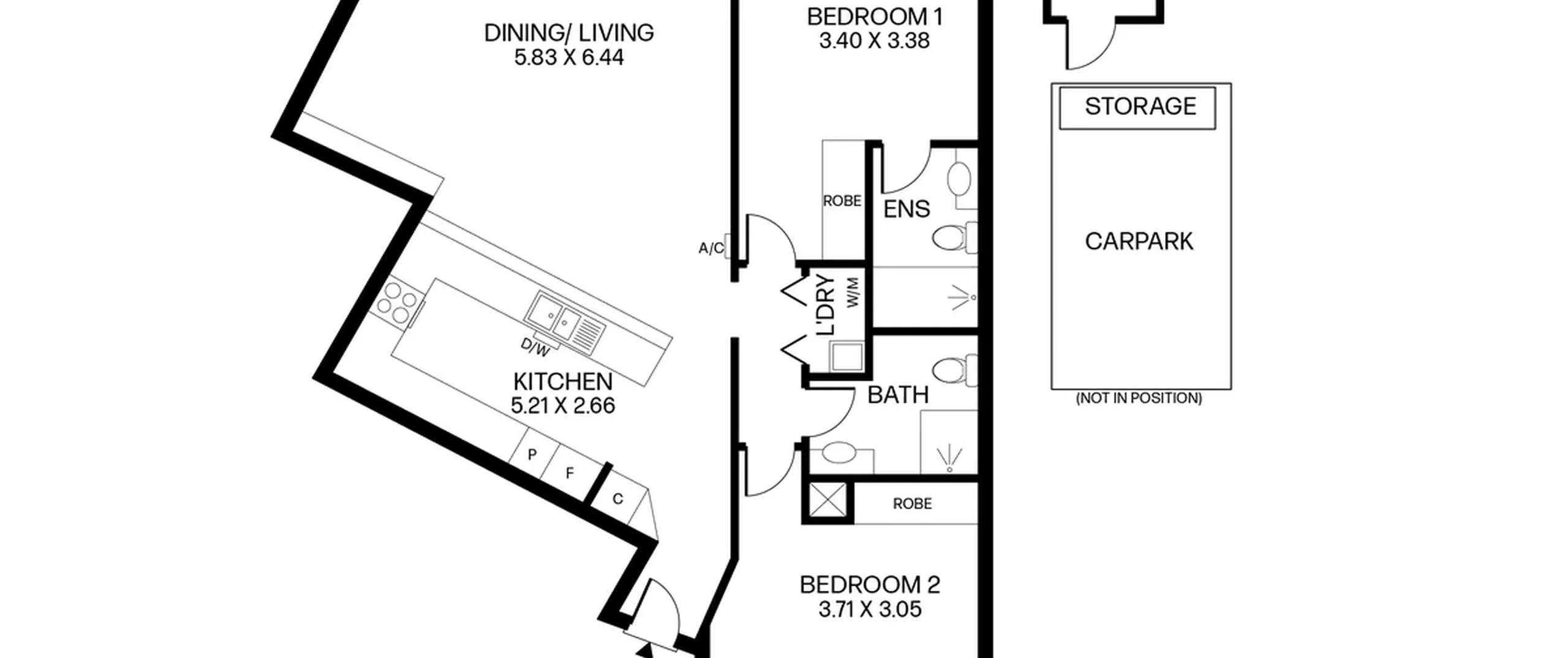
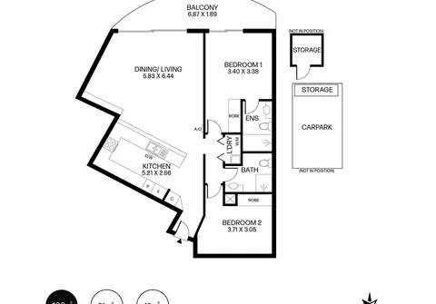
A practical layout connects two generous bedrooms with two modern bathrooms and a sunlit open plan zone that blends kitchen, living and dining. Stone benchtops, abundant storage and soft neutral finishes create an inviting sense of calm, while reverse cycle air-conditioning ensures year round comfort.
The secure building offers peace of mind with lift access, ground level car parking and a separate storage cage. Residents enjoy shared pool and gym facilities, and benefit from a superb position moments from scenic lakes, leafy parks and convenient public transport.
Features that make this home special:
- Large master suite with built in robe and ensuite
- Bedroom 2 of good size with built in robe
- Light filled open plan living with quality tiled flooring
- Modern white kitchen with stainless steel appliances and stone benchtops including dishwasher
- Sparkling main bathroom adjacent to second bedroom
- European laundry
- Generous balcony with beautiful Adelaide Hills views
- Pool and gym facilities
- Secure carpark for one vehicle plus a storage facility
- Additional private storage
- Reverse cycle split system air conditioning to main living
The suburb of Lightsview has been carefully designed with attention to convenience and open spaces, incorporating pedestrian linkages, 15 hectares of local parks and public reserves, public transport and cycling routes. Located close to Northgate Shopping Centre and a variety of excellent public and private schools. All this and only 8.1km (approximately) to all the cafes and shopping North Adelaide has to offer and the vibrant Adelaide Oval River precinct and less than 9km (approximately) to the CBD.
All information contained herewith, including but not limited to the general property description, price and the address, is provided to Boffo Real Estate by third parties. We have obtained this information from sources we believe to be reliable; however, we have not verified and do not guarantee its accuracy. The information contained should not be relied upon and you should make your own enquiries and seek advice in respect of this property or any property on this website.
Looking to purchase this property as an investment? Speak to our Property Management team to see how we can assist.
RLA 313174
Enquire about this property
