A New Chapter Awaits in a Stunning Lightsview Location!
Treat yourself to the very best in easy-care living with this superb abode with scenic views on your doorstep. Exemplifying contemporary comforts, this two-storey Torrens Titled home promises the idyllic lifestyle you have always dreamed of. You can take your pick from a selection of sumptuous living spaces on offer throughout the generous floor plan, while the prime location places you less than 20 minutes (approx.) from the heart of the hustling Adelaide CBD.
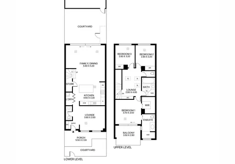
The ground floor houses the open-plan kitchen, meals and living area with seamless access via bi-fold doors to the private paved courtyard which boasts direct access into the rear double garage. The contemporary finishes continue in the timeless kitchen with quality appliances and ample storage plus there’s also a main-floor powder room, storeroom and a compact laundry.
All three bedrooms are comfortably nestled on the upper level including your generous master with an ensuite, built-in robe and your very own private balcony. The main bathroom is set with easy access from the guest bedrooms and there’s an additional lounge room, which can be utilised as your very own private retreat.
With a location and lifestyle that is hard to beat, there is nothing to do but simply move in, relax and enjoy your new Lightsview lifestyle.
Upper level comprising:
- Opulent master bedroom with generous walk-in robe and ensuite, complete with private balcony to put your feet up and enjoy the morning sunshine
- Good sized bedrooms 2 and 3; both with built-in robes
- Modern bathroom with large vanity, separate bath and shower with skylight
- Valuable lounge room with built in cupboard for extra storage
- Ducted air conditioning
Lower level comprising:
- Lounge room upon entry
- Spacious open-plan family and dining room with sliding doors leading outside offering a seamless flow between indoor-outdoor living
- Contemporary kitchen with stainless steel dishwasher, oven and gas cooktop with ample storage and a generous island bench with breakfast bar
- European laundry
- Extra storage space
- Ducted air conditioning
- Solar hot water
- Private outdoor courtyard and entertaining area, perfect to enjoy on a balmy summer night with friends and family
- Rear lane double garage with automatic roller door and direct access into courtyard
The suburb of Lightsview has been carefully designed with attention to convenience and open spaces, incorporating pedestrian linkages, 15 hectares of local parks and public reserves, public transport and cycling routes. Located close to Northgate Shopping Centre and a variety of excellent public and private schools. All this and only 8km (approximately) to all the cafes and shopping North Adelaide has to offer and the vibrant Adelaide Oval River precinct and less than 9km (approximately) to the CBD.
For further information please contact Paul Leombruno on 0439 160 161, Fadi Oudih on 0455 999 007or 8269 7711 (office).
All information contained herewith, including but not limited to the general property description, price and the address, is provided to Boffo Real Estate by third parties. We have obtained this information from sources we believe to be reliable; however, we have not verified and do not guarantee its accuracy. The information contained should not be relied upon and you should make your own enquiries and seek advice in respect of this property or any property on this website.
The Vendor's Statement (Form 1), the Auction Contract and the Conditions of Sale will be available for perusal by members of the public - (A) at our office located at 78-80 North East Road, Walkerville for at least 3 consecutive business days immediately preceding the auction; and (B) at the place at which the auction is to be conducted for at least 30 minutes immediately before the auction commences.
RLA 313174
