Discover Comfort and Convenience in this Immaculate Townhouse!
Looking for a stylish and comfortable three-bedroom home in Lightsview? Look no further! This low-maintenance and immaculately presented home is just what you've been searching for. Perfectly nestled in a sought-after, city fringe location, this abode is perfect for anyone looking for a convenient and comfortable place to call home.
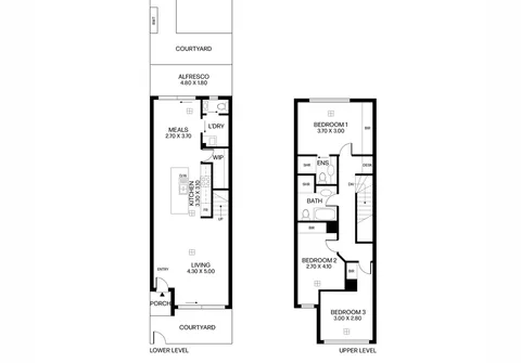
Inside, you'll find a light-filled living, dining, and kitchen area that's perfect for entertaining or relaxing with your loved ones. The timeless kitchen is fully equipped with modern appliances and plenty of storage space. If you love spending time outdoors, you'll appreciate the outdoor courtyard, which is ideal for barbecues or just soaking up the sun. The layout also features a convenient carport, providing secure parking.
The upper level comfortably accommodates three well-sized bedrooms, all complete with built-in robes, a study nook and the convenience of an ensuite and main bathroom.
With its prime location, you'll be able to enjoy all that the bustling Lightsview has to offer, from endless walking trails within easy reach, local cafes, gyms and easy access to the CBD. Whether you're a first-time homebuyer or looking to downsize, this is the perfect place to call home.
Don't miss out on this incredible opportunity to own your own piece of paradise in Lightsview!
Upper level comprising:
- Master bedroom with built-in robe and ensuite
- Bedroom 2 and 3 of good size, both complete with built-in robes
- Modern main bathroom with bath tub and shower
- Convenient study nook
- Ducted air conditioning
Lower level comprising:
- Light-filled open plan lounge, kitchen and meals area with glass sliding doors leading out to the alfresco area and courtyard
- Stylish kitchen complete with dishwasher, gas cooktop and ample cupboard and bench space, plus a walk-in pantry/storage room
- Additional toilet for added convenience
- Separate laundry
- Courtyard with alfresco dining area where you can host loved ones
- Ducted air conditioning
- Rainwater tank
- Single carport with automatic roller door and rear gate access
The suburb of Lightsview has been carefully designed with attention to convenience and open spaces, incorporating pedestrian linkages, 15 hectares of local parks and public reserves, public transport and cycling routes. Located close to Northgate Shopping Centre and a variety of excellent public and private schools. All this and only 8km (approximately) to all the cafes and shopping North Adelaide has to offer and the vibrant Adelaide Oval River precinct and less than 9.5km (approximately) to the CBD.
For further information please contact Paul Leombruno on 0439 160 161, Fadi Oudih on 0455 999 007 or 8269 7711 (office).
All information contained herewith, including but not limited to the general property description, price and the address, is provided to Boffo Real Estate by third parties. We have obtained this information from sources we believe to be reliable; however, we have not verified and do not guarantee its accuracy. The information contained should not be relied upon and you should make your own enquiries and seek advice in respect of this property or any property on this website.
RLA 313174
