Immerse Yourself in The Life of Leisure and Luxury!
This beautifully designed and immaculately presented home is nestled within a tranquil location close to parks, playgrounds and endless walking paths. Quality finishes are on show throughout the two-storey layout that offers the new owners a chance to simply unpack and make themselves at home.
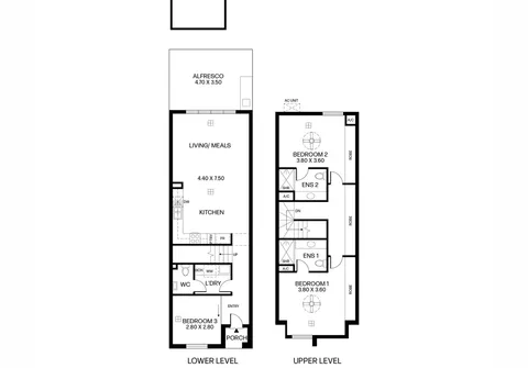
No matter the mood or occasion, this impressive layout has a comfortable space to suit. The living spans over two levels with the centre of the home being the captivating open-plan kitchen, meals and family area. The sleek kitchen is a cook’s dream with premium inclusions while a wall of sliding doors opens to create an effortless connection to the idyllic alfresco and private courtyard.
The attention to detail continues into the two upper-floor master bedrooms, both featuring large built-in robes and luxe ensuites.
With a striking street appeal and a modern style inside, there is nothing to do but simply move in, relax and enjoy this fabulous property!
Features that make this house special:
- High-quality 2020 Rivergum build
- Bedrooms 1 and 2 of good size, both boasting wall length built in robe, ensuites and ceiling fans
- Large built-in cupboard on upper level, perfect for additional storage
- Good sized bedroom 3, located on the lower level
- Light-filled open plan lounge, kitchen and meals area with glass sliding doors opening to the alfresco providing seamless flow between indoor and outdoor entertaining areas
- Chic kitchen with stone benchtops, stainless steel appliances including gas cooktop, oven, dishwasher, plumbing for fridge and complete with ample cupboard space
- Additional powder room for added convenience
- Stylish separate laundry
- Alfresco under the main roof with café blinds and outdoor kitchenette making outdoor entertaining a breeze all year round
- Garden beds with irrigation system
- Single garage to the rear property with automatic panel door and direct access to the home
- Ducted reverse-cycle air conditioning
- 6.5Kw solar system with a 5kw inverter
- High ceilings throughout
- High-speed NBN connection (FTTP - Fibre To The Premises)
The suburb of Lightsview has been carefully designed with attention to convenience and open spaces, incorporating pedestrian linkages, 15 hectares of local parks and public reserves, public transport and cycling routes. Located close to Northgate Shopping Centre, Medical Centre and a variety of excellent public and private schools. All this and only 7km (approximately) to all the cafes and shopping North Adelaide has to offer and the vibrant Adelaide Oval River precinct and less than 9km (approximately) to the CBD.
For further information, please contact Fadi Oudih on 0455 999 007, Paul Leombruno on 0439 160 161 or 8269 7711 (office).
All information provided has been obtained from sources we believe to be accurate, however, we cannot provide any guarantee and we accept no liability for any errors or omissions (including but not limited to a property's land size, floor plans and size, building age and condition). Interested parties should make their own inquiries and obtain their own legal advice.
RLA 313174
