Exquisite Living on East Parkway!
Offers closing Monday 16th May 2022 at 5pm (Unless Sold Prior).
This thoughtfully designed and immaculately presented home is nestled within a tranquil location close to parks, playgrounds, endless walking paths and lane way access. Quality finishes are on show throughout the two-storey layout that offers the new owners a chance to simply unpack and make themselves at home.
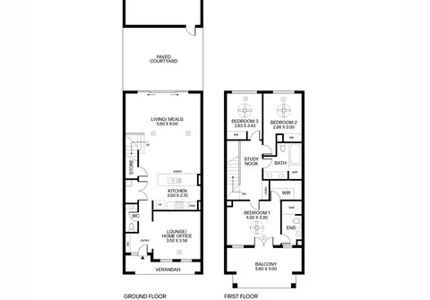
Living stretches over two levels with modern finishes on show throughout. The upper-level houses three bedrooms, two bathrooms, a study nook and owner’s suite with access to the private and covered balcony. From here, you can relax as you take in the views with a book in hand.
Downstairs, the large living and dining area spills out to a sunny courtyard and there is a separate lounge perfect for use as an office or retreat. For those who love to cook, a gourmet kitchen awaits with a dishwasher, a walk-in pantry and a breakfast bar. A stylish laundry nook, powder room and a detached double garage complete this impressive abode.
With an attractive street appeal, modern style inside and all the hard work that has already been done, there is nothing to do but simply move in, relax and enjoy this remarkable home.
With all land releases complete, don’t miss your chance to get into Lightsview!
Upper level comprising of:
- Spacious master bedroom with walk-in robe, ensuite and French bi fold doors to the oversized and private balcony
- Bedroom 2 and 3 complete with built-in robes and ceilings fans
- Study nook, perfect for a home office
- Central main bathroom with dual basins, bath tub and shower all complete with modern tapware
Lower level comprising of:
- Light filled and open plan living/meals area which is complimented by the northern sun
- Additional lounge room with option to use as study or option to convert to a 4th bedroom
- Chic and stylish kitchen with gas cook top, breakfast bar and walk-in pantry/storeroom
- European laundry
- Powder room for added convenience
- Well maintained rear courtyard with irrigation system
- Additional street parking to the front of home
- Double garage with automatic panel lift door and rear laneway access
- Smart lighting downstairs in common areas including front porch which can be programmed to choice (excludes toilet, laundry and store room)
Additional features to further entice:
- Ducted reverse cycle air-conditioning throughout
- Solar hot water system
- All major areas freshly painted
- Well thought out and updated front garden
- Front and rear security doors with Crimsafe/Amplimesh mesh
The suburb of Lightsview has been carefully designed with attention to convenience and open spaces, incorporating pedestrian linkages, 15 hectares of local parks and public reserves, public transport and cycling routes. Located close to Northgate Shopping Centre, Medical Centre and a variety of excellent public and private schools. All this and only 7km (approximately) to all the cafes and shopping North Adelaide has to offer and the vibrant Adelaide Oval River precinct and less than 9km (approximately) to the CBD.
For further information please contact Paul Leombruno on 0439 160 161, Fadi Oudih on 0455 999 007 or 8269 7711 (office).
All information provided has been obtained from sources we believe to be accurate, however, we cannot provide any guarantee and we accept no liability for any errors or omissions (including but not limited to a property's land size, floor plans and size, building age and condition). Interested parties should make their own inquiries and obtain their own legal advice.
RLA 313174
