Sleek and Stylish Townhouse in Lightsview!
Immerse yourself in the life of leisure you deserve with this beautiful abode located only moments from the local Jibbi & Co cafe and glistening lake. Grab a morning coffee and go for a scenic walk before returning to the comfort and style of this light-filled home.
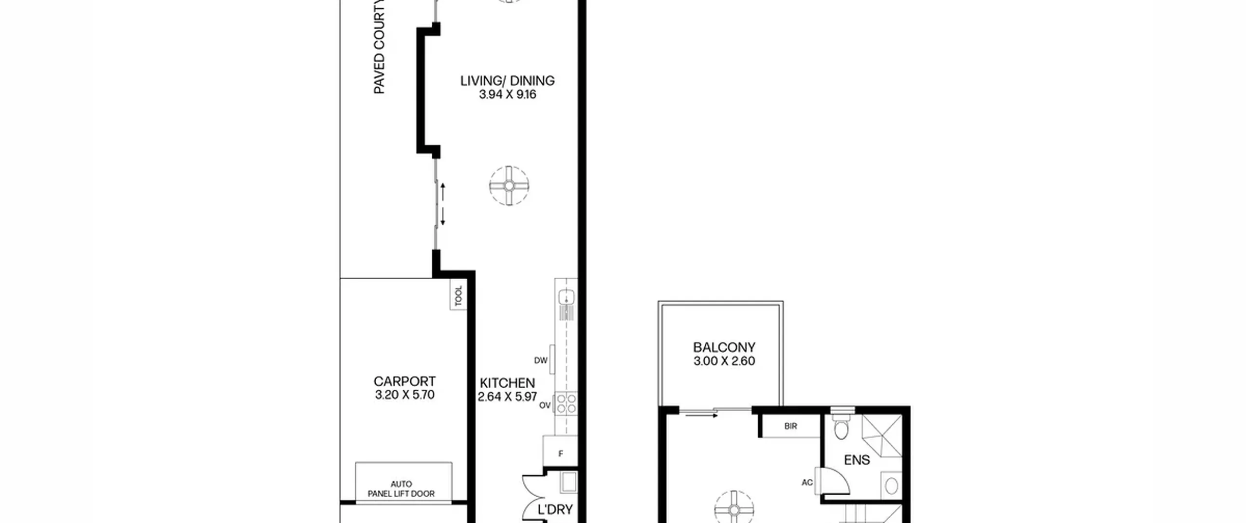
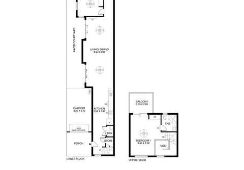
The layout is fit for family life with three bedrooms and two bathrooms, plus an open-plan living space with a high ceiling, on-trend flooring and lots of natural light. There are also ceiling fans and air-conditioning for comfort along with a modern colour palette for a chic feel. In the kitchen, a dishwasher and gas cooktop await along with plenty of storage space.
Two bedrooms and a bathroom are located downstairs while the upper level is dedicated to the main bedroom with a built-in robe, an ensuite and a private balcony.
With an attractive street appeal and a modern style inside, there is nothing to do but simply move in, relax and enjoy this wonderful home!
Upper level comprising of:
- Modern and spacious master bedroom with ceiling fan, split-system air-conditioner, built-in robe, ensuite and sliding doors to the private balcony
Lower level comprising of:
- Bedrooms 2 and 3 of good size, both with ceiling fans and bedroom 3 with built-in robe
- Light-filled dining and living area with ceiling fans, split-system air-conditioner and opening out to the paved courtyard
- Stylish kitchen with dishwasher, gas cooktop and ample cupboard and bench space
- Lofty high ceilings
- Neutral main bathroom
- European laundry
- Paved courtyard
- Single carport with automatic roller door and space in driveway for additional car
The suburb of Lightsview has been carefully designed with attention to convenience and open spaces, incorporating pedestrian linkages, 15 hectares of local parks and public reserves, public transport and cycling routes. Located close to Northgate Shopping Centre and a variety of excellent public and private schools. All this and only 7km (approximately) to all the cafes and shopping North Adelaide has to offer and the vibrant Adelaide Oval River precinct and less than 9km (approximately) to the CBD.
For further information, please contact Fadi Oudih on 0455 999 007, Paul Leombruno on 0439 160 161 or 8269 7711 (office).
All information provided has been obtained from sources we believe to be accurate, however, we cannot provide any guarantee and we accept no liability for any errors or omissions (including but not limited to a property's land size, floor plans and size, building age and condition). Interested parties should make their own inquiries and obtain their own legal advice.
RLA 200591
