Luxurious and Low Maintenance Lifestyle
Enjoy the modern convenience of low maintenance living with this polished home in the highly sought after suburb of Lightsview. With a commanding street presence, this home presents a safe and private haven for you to enjoy the lifestyle of your choice!
Careful attention to detail by the owner and builder has cumulated in a luxurious ambience due to high end finishes and fittings and a modern, neutral decor throughout.
Offering a lock up and leave lifestyle, this home will appeal to professionals, young families and those looking to downsize, as well as the savvy investor looking to add to their portfolio.
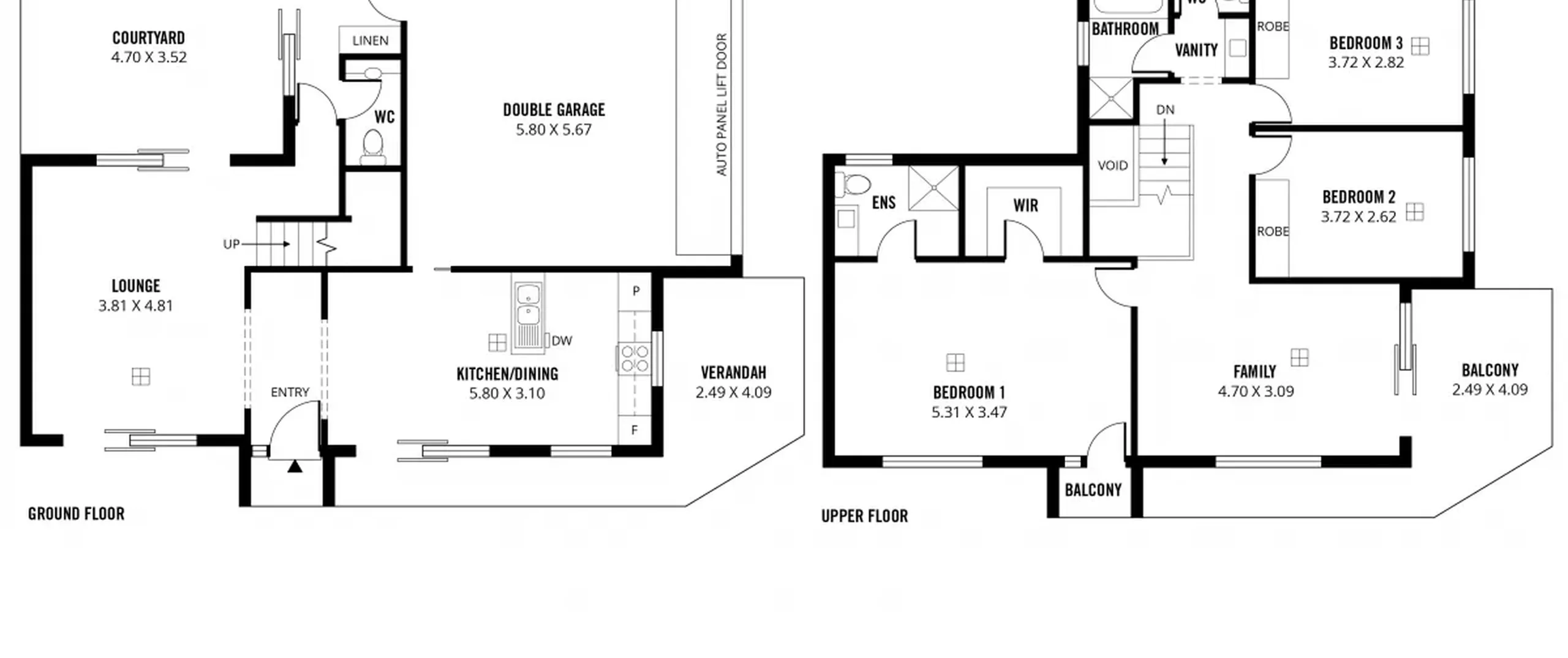
Upper level comprising of:
- Spacious master bedroom with walk-in robe, ensuite and private balcony
- Good sized bedrooms 2 and 3, both with built-in robe
- Family room opening onto large balcony with lovely views
- Three-way main bathroom
- Ducted air conditioning throughout
Lower level comprising of:
- Light filled lounge
- Stylish kitchen with gas cooktop, dishwasher and island bench with breakfast bar
- Dining area adjacent kitchen
- Powder room
- Separate laundry
- Ducted air conditioning throughout
- Private courtyard, ideal for outdoor entertaining
- Double garage with automatic door
Astute investors may also consider renting this beautiful low maintenance home that currently receives $440 per week.
The suburb of Lightsview has been carefully designed with attention to convenience and open spaces, incorporating pedestrian linkages, 15 hectares of local parks and public reserves, public transport and cycling routes. Located close to Northgate Shopping Centre and with plans for a future town centre in Lightsview featuring cafes and specialty stores. A variety of excellent public and private schools in close proximity. All this and only 7km (approximately) to all the cafes and shopping North Adelaide has to offer, the vibrant Adelaide Oval River precinct and less than 9km (approximately) to the CBD.
For further information, please contact Graeme Brown on 0455 111 791, Jayden Kirk on 0448 225 517 or 8269 7711 (office).
RLA 200591
