Picturesque Views from this Top Floor Apartment!
This is your chance to secure a sophisticated and stylish top floor apartment in the emerging suburb of Lightsview with scenic City and Hills views on hand. Offering a lock-up and leave lifestyle, this is a home that is perfectly suited for young professionals, first home buyers or investors looking for a solid investment placed in an attractive city fringe location.
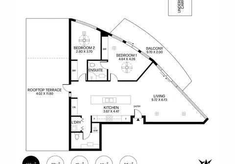
The easy-care and functional floorplan boasts two bedrooms, two bathrooms and an open-plan kitchen, living and meals area set in the heart of the floorplan. A timeless kitchen awaits with an abundance of storage and stone waterfall benchtops. Natural light and neutral colour tones enhance the sense of space while ducted air-conditioning promises climate-controlled comfort.
Step out to your very own private oasis on the rooftop terrace, with a pergola and beautiful views on the horizon, making the perfect setting for hosting memorable occasions.
The building is a secure complex with a lift in a central location with lakes, parks, and playgrounds within walking distance and shops, parks and public transport all within very easy reach. A car space and storage cage are located on the ground floor with full security as well as access to the pool and gym facilities.
Act quick - A fabulous city fringe lifestyle awaits!
Features that make this home special:
- Large master suite with mirrored built-in robe, ceiling fan, direct access to a private balcony and a sleek ensuite
- Bedroom 2 of good size with a built-in robe and ceiling fan
- Spacious open-plan living room flooded with natural light from the wall-length windows and glass sliding doors opening to the private balcony offering panoramic views
- Modern white kitchen with stainless steel appliances, ample cupboard space and sweeping stone benchtops including a large island bench
- Sparkling main bathroom centrally located
- European laundry
- Linen cupboard
- Expansive private rooftop terrace, partially undercover, ideal for hosting friends and family while enjoying the views of the Adelaide Hills
- Pool and gym facilities
- Secure carpark for 1 vehicle, plus a large storage facility
- Additional private storage
- Ducted air conditioning
The suburb of Lightsview has been carefully designed with attention to convenience and open spaces, incorporating pedestrian linkages, 15 hectares of local parks and public reserves, public transport and cycling routes. Located close to Northgate Shopping Centre and a variety of excellent public and private schools. All this and only 7km (approximately) to all the cafes and shopping North Adelaide has to offer and the vibrant Adelaide Oval River precinct and less than 9km (approximately) to the CBD.
For further information, please contact Fadi Oudih on 0455 999 007, Paul Leombruno on 0439 160 161 or 8269 7711 (office).
All information contained herewith, including but not limited to the general property description, price and the address, is provided to Boffo Real Estate by third parties. We have obtained this information from sources we believe to be reliable; however, we have not verified and do not guarantee its accuracy. The information contained should not be relied upon and you should make your own enquiries and seek advice in respect of this property or any property on this website.
RLA 313174
