All The Boxes Are Ticked, Just Move In and Enjoy
Tucked away in a peaceful location this modern and secure courtyard home will impress the astute buyer looking for a quiet, low maintenance lifestyle with close proximity to many facilities. This single storey courtyard home is on a Community Title and is set well back from the road.
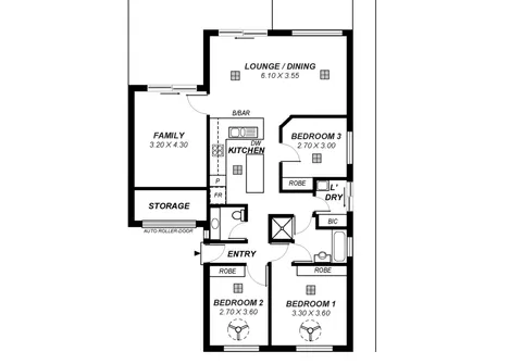
Features that make this home special;
- 3 Good sized bedrooms, all with built in robes
- Light filled lounge/dining area
- Valuable second living/family area overlooking the courtyard garden
- Stylish kitchen with stainless steel appliances, gas cooktop and ample bench and storage space
- Bathroom with separate shower and bath
- Powder room incorporating vanity and w/c
- Separate laundry
- Quality timber floating floors
- Neutral décor throughout
- Ducted reverse cycle air-conditioning
- Security alarm system
- Private, peaceful paved courtyard plus undercover outdoor entertaining area
- Off street parking for 2 vehicles
It's all here, offering a low maintenance lifestyle.
Conveniently located close to TK Shutter Reserve, the Klemzig O’Bahn Interchange, with easy access to local shopping including the Greenacres Shopping Centre, schools and entertainment options. All this and only approximately a quick 15 minute drive to the City and the fabulous Adelaide Oval Riverbank Precinct.
Do not miss out on this opportunity you could be in your new home before Christmas!
For further information please contact Warwick Haseloff on 0499 111 996
RLA 265613
