Stunning Large Family Entertainer in a fabulous location. Offering Space, Privacy, Security!
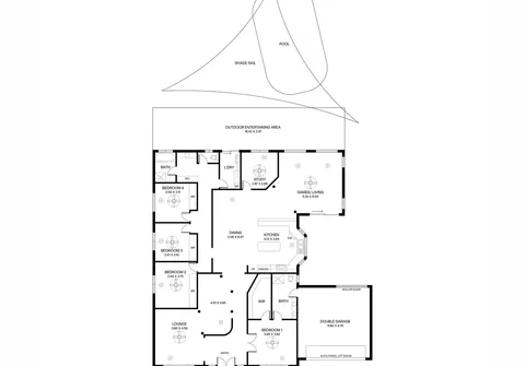
Commandingly positioned on a 780sqm (approximate) allotment and designed to cater to the needs and desires of a modern family. This home is spacious, stylish and bursting with features! You can comfortably accommodate multiple generations with 5 bedrooms in the main home plus a self-contained, 1 bedroom studio with bathroom and kitchenette adding to the property’s versatility.
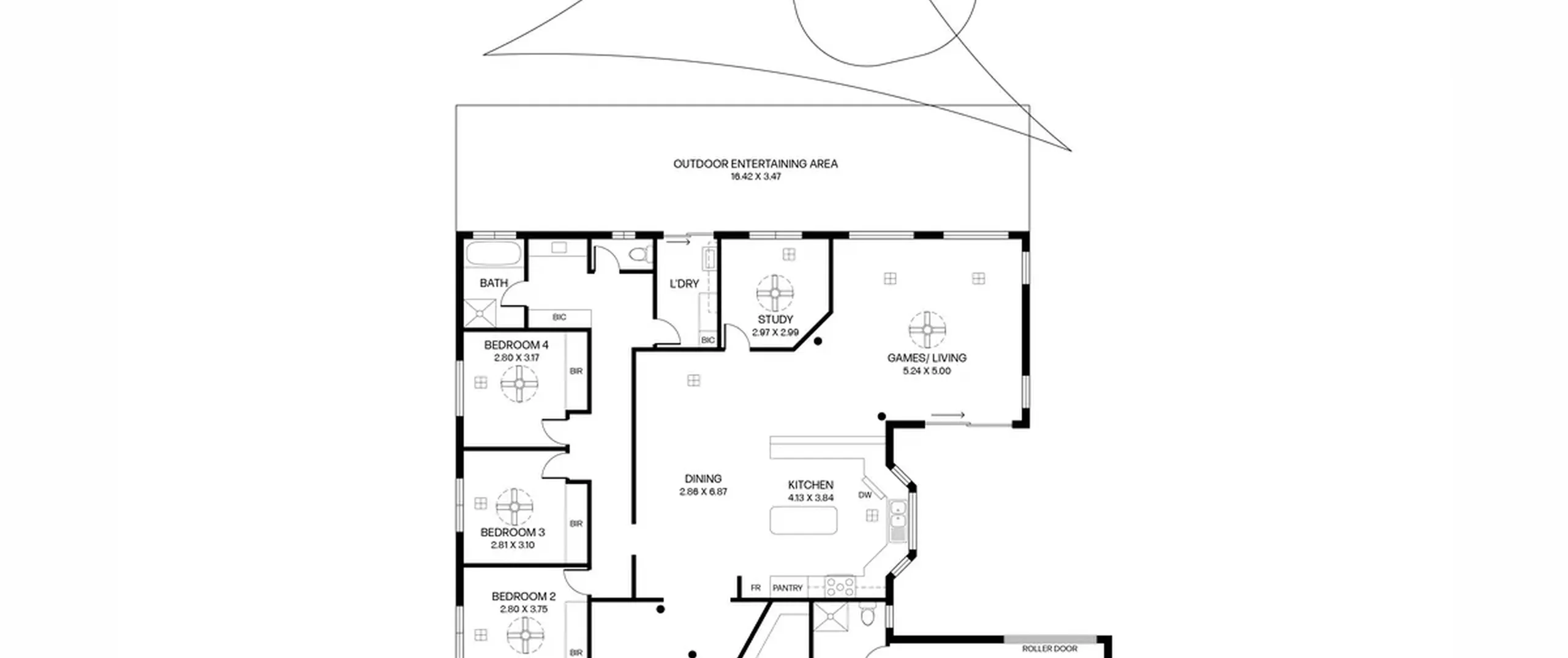
Inside the main residence, there are multiple light-filled living areas with quality tiles underfoot plus a well-equipped kitchen sure to delight the eager cook.
Outside the entertaining area offers a perfect place for gathering with loved ones or simply unwinding at the end of the day with a cool drink in hand as you overlook the pool, lush lawn and manicured gardens.
Features that make this home special:
- Commodious master bedroom suite with ceiling fan, large walk-in robe and ensuite featuring stylish his and her basins
- Bedrooms 2, 3 and 4 of great size complete with ceiling fans and built-in robes
- Study or 5th bedroom offering a ceiling fan
- Formal lounge area upon entry to the home
- Expansive open plan kitchen, dining and games/living area providing versatility to suit your lifestyle with enough space to unwind for the whole family
- Functional kitchen offering plenty of cupboard and bench space, gas cooktop, Puratap and stainless-steel dishwasher
- 3-way main bathroom with separate shower and bath
- Convenient separate toilet
- Laundry offering built-in storage
- Outdoor entertaining area with shade sail extending out over the pool
- Valuable self-contained studio/office/ bedroom offering the perfect teenage retreat or Air BnB opportunity, complete with reverse cycle air conditioner, kitchenette and bathroom
- Tool/garden shed
- Double garage with automatic panel lift door, drive through access to the rear yard and internal access into the master suite
- Ducted reverse cycle air conditioning
- Additional off-street parking for several vehicles
- Low maintenance grounds with a peaceful Zen-like front garden that is private and spacious
- Security and privacy are in abundance with an electric gate for vehicle access, security alarm system and security cameras
- Large 10KW solar electrical system to potentially reduce your cost of living
This home has everything a family may need with space for all generations of your family, don’t hesitate for this opportunity it will not last long!
Positioned perfect in the highly regarded suburb of Klemzig you are spoilt for choice with a variety of cafés, shops and amenities right at your door step. Excellent public and private schools nearby. Only 11 minutes (approximately) away from the Adelaide CBD and only a stone’s throw away to the stunning Linear Park & the O’Bahn Klemzig Interchange.
For further information please contact Warwick Haseloff on 0499 111 996 or 8269 7711 (office).
The Vendor's Statement (Form 1), the Auction Contract and the Conditions of Sale will be available for perusal by members of the public - (A) at our office located at 78-80 North East Road, Walkerville for at least 3 consecutive business days immediately preceding the auction; and (B) at the place at which the auction is to be conducted for at least 30 minutes immediately before the auction commences.
RLA 200591
