Renovated Solid Brick Home On Large Allotment
Best offers by 5pm Tuesday 23rd February unless sold prior!
Refreshed and Rejuvenated!
On offer is this fully renovated and extended 3 bedroom double brick home situated on a generous 737sqm (approximate) allotment in the tightly held suburb of Kilburn.
Situated on east facing flat land in a quiet no through road and surrounded by very lovely neighbours, this home offers a spacious floor plan with flexibility to adapt to the growing family.
With under 12 minutes (approximate) commute to the city and and very frequent bus services nearby, this home is sure to impress families looking for quality living with space to expand in the inner Adelaide suburb, first home buyers looking to get into the market and investors looking to add to their current portfolio in a developing area.
A home that has been transformed from top to bottom with quality upgrades throughout, you can call this place home for years to come.
Features that make this home special:
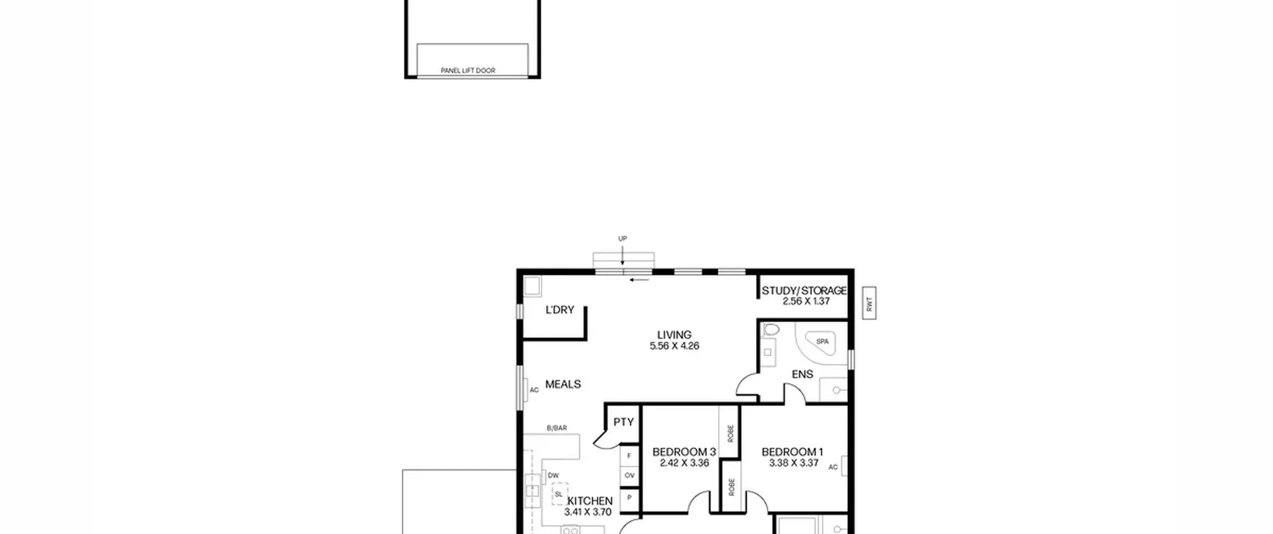
- Bedroom 1 with split system air conditioner, built-in robe and two-way ensuite
- Bedroom 2 with split system air conditioner and built-in robe
- Good sized bedroom 3 with built-in robe
- Large light filled formal lounge with energy efficient split system air conditioner
- Stylish modern kitchen featuring granite benchtops, floor to ceiling marble tiles extending to dining area, band new stainless steel rangehood, 5 burner cook top, walk-in pantry, second pantry, plenty of cupboards, bench top lights, breakfast bar, skylight, Puratap and stainless steel appliances including built-in microwave and dishwasher
- Contemporary main bathroom complete with bath, separate futuristic shower with back jet massagers, rain shower and convertible steam room, and floor to ceiling tiles
- Two-way ensuite complete with large spa bath, granite tiles and granite top basic, separate shower and floor to ceiling tiles
- Practical laundry
- Fully fenced, low maintenance yard with multiple fruit trees including Indian Tulsi (basil), Indian guava, curry leaves, citrus trees, plum, peach tree, 2 generous vegetable patches, automatic irrigation, large garage with panel lift door and additional shed
- 1,000L rainwater tank
- Secure carport with roller door and drive through access to rear yard
- LED Downlights throughout
- Granite flooring
- High and secure front fence for privacy and security
- Quiet no through road location
- Fronted with a rare auspicious Tulsi (Indian basil) garden
- Complete plumbing work redone with new bathrooms, laundry and kitchen
- All electrical work is new including new electricity and gas meter, all light, air conditioners and power points
- Cost saving features including 5kW solar panels with 7.5kW inverter, off peak meter, energy efficient air conditioners, gas top cooking and LED lights slashes electricity bill
- Roller shutters are on all windows and back French doors making it a very safe abode
- Automated front gate and automated garage roller shutter add additional safety, convenience and beauty
- Home is completely tiled and is fitted with new doors, furnishing and skirting boards
- Roof is renovated and painted
- New insulation has been added throughout the home
- Home was recently renovated to extend the kitchen and add laundry, a second bathroom and a convertible open plan living space with study nook
- Open plan living has the potential to be transformed into a 4th bedroom with walk-in robe and ensuite with a simple divider based on needs of the growing family
Perfectly located within walking distance to the fantastic Churchill Road shopping precinct including Costco and Aldi, and also close by to Northpark Shopping Centre and Sefton Plaza. Just a short distance to a variety of quality schools such as Blackfriars, Prescott college, St Brigid's School, Prospect North Primary School, Enfield Primary School and Saint Paul Lutheran School as well as child care and early learning centres. Plenty of public transport options as well as parks and recreation facilities are also nearby. All this and less than 8kms (approximately) to the CBD.
For further information please contact Graeme Brown on 0455 111 791, Jayden Kirk on 0448 225 517 or (08) 8269 7711 (office).
Please Note: Edited grass photos are for illustration purposes only.
RLA 200591
