OPEN CANCELLED - CONTACT AGENT FOR FURTHER INFORMATION
Character Cottage with Charm
This 1915 built character cottage provides a fantastic opportunity for those looking to own a charming home perfectly located close to all amenities. Meticulously cared for and maintained, and boasting original character features such as 12 foot high ceilings, ceiling roses and a beautiful slate fireplace, this home is sure to impress.
Features that make this home special:
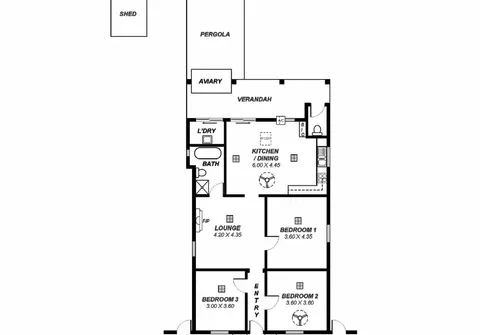
- Three large bedrooms, bedroom 2 with ceiling fan
- Spacious lounge with beautiful slate fireplace
- Modern kitchen with stainless steel appliances, ample bench and cupboard space, induction cooktop, compact dishwasher, skylight, ceiling fan and split system reverse cycle air conditioner
- Large dining area adjacent kitchen
- Bathroom with separate bath and shower
- Separate laundry with ample storage space
- Valuable second toilet with access from verandah
- Ducted evaporative cooling and ducted gas heating throughout, rare for a house of this age
- Verandah and pergola, ideal for outdoor entertaining
- Fully fenced, secure rear yard with garden sheds and aviary
- Wide driveway with ample space for off-street parking for multiple vehicles and gates for security
Perfectly located within walking distance to the fantastic Churchill Road shopping precinct including Costco and Aldi, and also close by to Northpark Shopping Centre and Sefton Plaza. Just a short distance to a variety of quality schools such as St Brigid's School, Prospect North Primary School, Enfield Primary School and Saint Paul Lutheran School as well as child care and early learning centres. Plenty of public transport options as well as parks and recreation facilities are also nearby. All this and less than 8kms (approximately) to the CBD.
For further information please contact James Rawkins on 0408 081 826 or (08) 8269 7711 (office).
RLA 200591
