Approved And Ready To Build!
Located on the high side of the street in the best part of Ingle Farm (adjacent Walkley Heights) lies a fantastic opportunity to secure this council approved allotment.
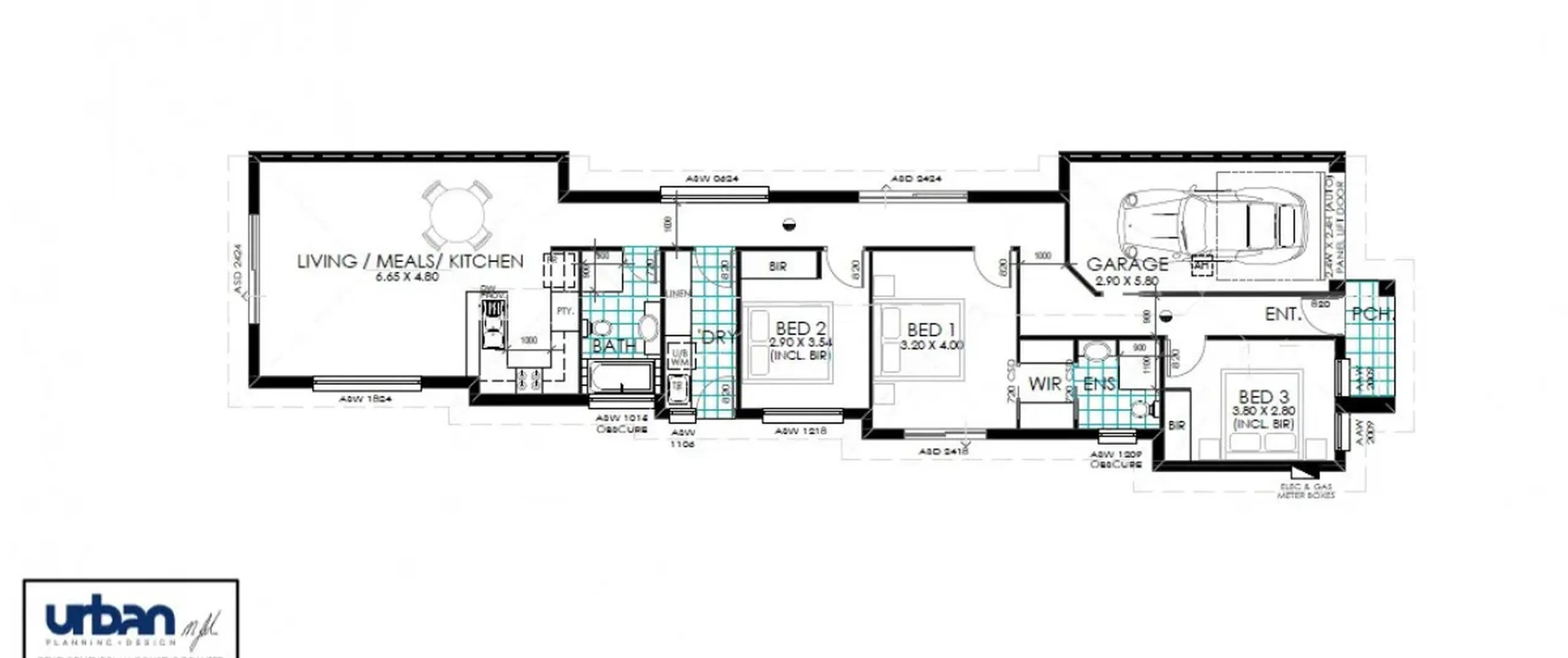
With a meticulously and spacious floor plan design approved, this allotment is a very affordable entry level for land in this sought after suburb. Take advantage of stamp duty savings and first home buyer grants (subject to criteria) and build a quality home for under $340,000. Similar designs are selling for $390,000 once complete.
Build to your specs, with 250sqm (approximately) and a 8.6m frontage (approximately), it's worth the wait!
This affordable, low maintenance piece of prime land is conveniently located just a short drive to nearby lifestyle & recreational facilities, Ingle Farm Shopping Centre, medical facilities and plenty of public transport options (including O-Bahn Busway to the city).
Ideally located close by to a variety of schools including Valley View Secondary School and St Pauls College, and nearby to the parks and walking trails along Dry Creek.
Act now to secure this prime land! It won't last long.
For further information please contact Graeme on 0455 111 791, Andrew Tamburrino on 0447 888 177 or 8269 7711 (office).
RLA 200591
Note: This Proposed Plan of Land Division is being offered subject to all Council and government consents and subject to the deposit of the plan of land division and at this time may or may not be approved and/or may be awaiting approval and/or conditions to be satisfied, therefore please refer to the agent and/or the vendor and/or council in relation to the status of this proposed land development and/or make your own investigations to satisfy your enquiries. This is a Land Sale and the buyer will settle on Land only at settlement. For these and all other enquiries in relation to this proposed land offering and/or how it is being offered, then please refer to the agent and or vendor for further clarification.
