Add Value and Prosper - 675sqm, 20.12m Frontage, 33.53m Depth!*
Set on an enviable 675sqm* allotment, with substantial 20.12m* frontage and 33.53* depth, this home offers loads of potential for one lucky purchaser!
Located in the Salisbury Council area and zoned General Neighbourhood this traditional sized allotment will appeal to multiple buyers. Positioned in a quality street, it is in close proximity to a whole host of local amenities.
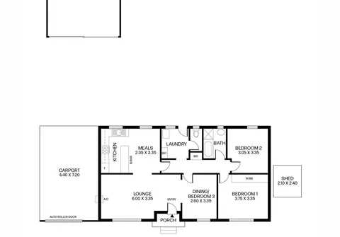
A neat 1968 built brick home is currently onsite. Offering 2 bedrooms (with potential to convert back to the original 3-bedroom layout), good sized lounge and kitchen with adjacent meals area, it would respond well to some cosmetic upgrades. Providing a carport with auto roller door and large double garage with power, this property is a great choice as a home to move into. Investors may also consider taking advantage of the historically strong capital growth and rental returns in the area.
Alternatively with the outstanding block dimensions and favourable zoning this could well be the perfect site to build a dream home or undertake a development project (both subject to consents). All around are high quality new built homes. Some on sub divided blocks and some as single dwellings on traditional sized allotments. Family friendly and vibrant, this is an area that people love to live in!
Features that make this property special;
- 675sqm* block
- 20.12m* frontage
- 33.53m* depth
- No Easements
- Zoned General Neighbourhood
- Salisbury Council area
- House built 1968*
- 2 bedrooms
- Potential to convert back to original 3-bedroom layout
- Good sized lounge room
- Neat kitchen with adjacent meals area
- Bathroom with separate bath and shower + separate toilet for convenience
- Separate laundry
- Air conditioning
- Security alarm system
- 8 panel solar electrical system
- Large double garage with power
- Carport with auto roller door
- Multiple established fruit trees
- Garden shed
Ideally located only minutes away from Drakes Mini Walkley Heights, a variety of schools including Ingle Farm Primary, Good Shepherd Lutheran School and St Paul's College. Within easy access to the city via the O-Bahn Paradise Interchange. All of this and only 15.3km (approximately) to the Adelaide CBD and 5.2km (approximately) to all of the shopping and entertainment options that Tea Tree Plaza has to offer.
All information contained herewith, including but not limited to the general property description, price and the address, is provided to Boffo Real Estate by third parties. We have obtained this information from sources we believe to be reliable; however, we have not verified and do not guarantee its accuracy. The information contained herewith should not be relied upon and you should make your own enquiries and seek advice in respect of this property or any property on this website.
The Vendor's Statement (Form 1), the Auction Contract and the Conditions of Sale will be available for perusal by members of the public - (A) at our office located at 78-80 North East Road, Walkerville for at least 3 consecutive business days immediately preceding the auction; and (B) at the place at which the auction is to be conducted for at least 30 minutes immediately before the auction commences.
Looking to purchase this property as an investment? Speak to our Property Management team to see how we can assist.
RLA 313174
