An Entertainer's Oasis with Contemporary Charm!
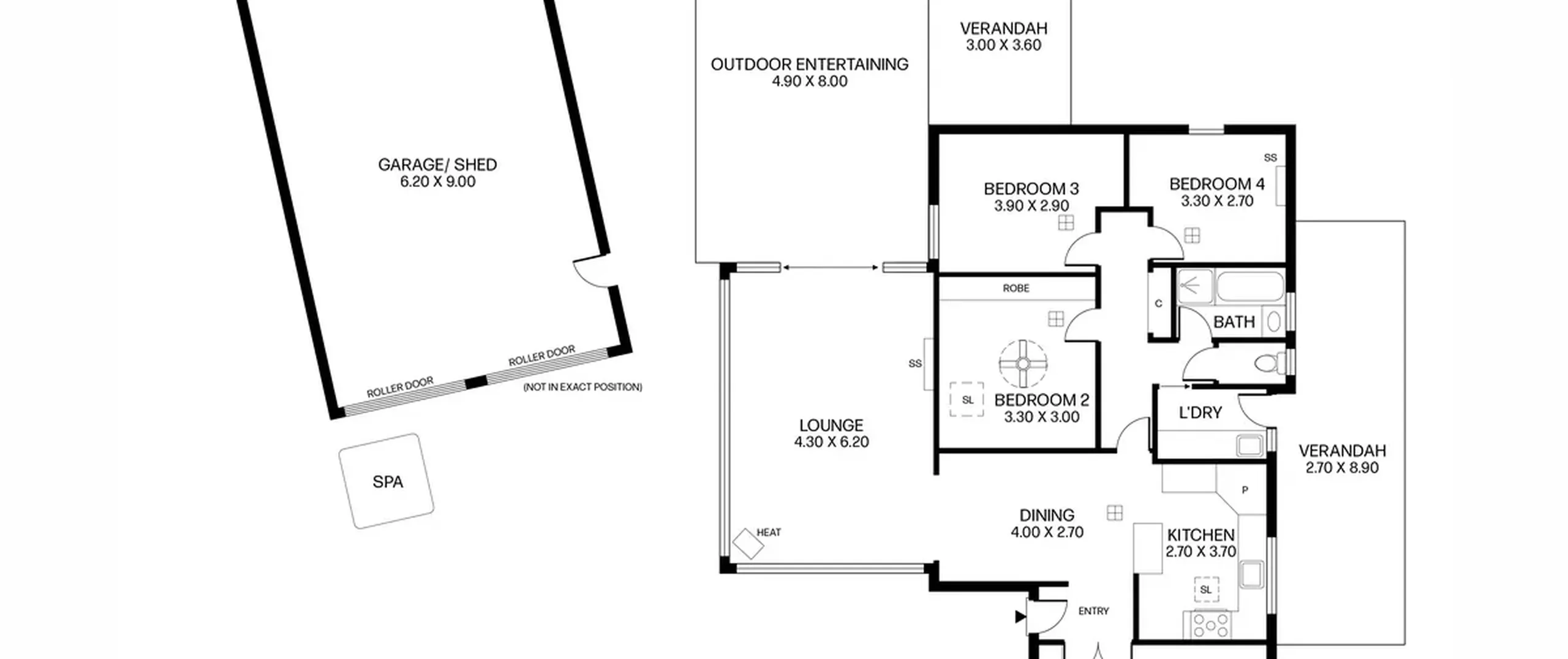
Discover your dream home in the heart of Ingle Farm! Nestled on a spacious 615sqm (approx.) allotment, this stunning five-bedroom residence offers versatile living options, a modern kitchen, a large rear shed, and a dedicated rumpus area with its own bathroom. Ideal for growing or multi-generational families, this well-maintained property combines convenience with ample room for play and relaxation.
Step inside and explore an expansive internal floorplan designed for comfort and enjoyment. The home boasts four versatile bedrooms, and a lounge room bathed in natural light. The adjacent dining area and modern kitchen come equipped with a 5-burner stove, ample cupboard space, and a generous adjoining meals area.
For the entertainer at heart, the living area seamlessly transitions to a covered outdoor entertaining space through sliding glass doors. Here, you'll find a low-maintenance backyard, a charming verandah, and an inviting spa – the perfect setting for both relaxation and recreation. The large rear garage/shed, complete with an additional rumpus room, offers extra space for entertaining guests.
This property is packed with features, including updated light fittings throughout, natural light from skylights, solid wooden polished floorboards, and a 5.8kW solar system with 20 solar panels, making it as functional as it is stylish.
Don’t miss this exceptional opportunity to secure a home that caters to every need. Astute buyers will be impressed by the blend of contemporary elegance and practical living offered by this grand entertainer's oasis.
Features that make this home special:
- Generous bedroom 1 and 2, both equipped with built-in robes and ceiling fan
- Automatic roller shutter to bedroom 1
- Well sized bedrooms 3 and 4 with robe space provision
- Spacious lounge with gas fire heater, adjoining to the meals area and kitchen
- Modern kitchen with gas cooktop, pantry, ample cupboard and bench space
- Central main bathroom with separate bath and shower + separate toilet
- Separate laundry with linen storage to the hallway
- Extensive outdoor entertaining area equipped kitchen area, open fire place, and pitched roof verandah, perfect for entertaining
- Large, detached garage/shed and rumpus room fit for a bedroom, with its own bathroom, and an additional storage room
- Additional outdoor area/laundry drying provision 2.7m x 8.9m
- Outdoor spa
- Evaporative air conditioning
- Split system air conditioning in Bedroom 1, 4, 5 and lounge area
- NBN fibre connected
- Intercom and CCTV system available (currently not connected)
- Renovated low-maintenance front and rear garden
- Ample space for parking with double length driveway and gate which leads you through to the double garage
Ideally located within close proximity to Ingle Farm Shopping Centre, a variety parks and public transport options. Standing directly opposite North Ingle Farm Primary School and a short distance from an array of other schools. Only minutes away from all the shopping and entertainment that Tea Tree Plaza has to offer. All this and the added bonus of the Adelaide CBD less than 15.7kms (approximately) away.
All information provided has been obtained from sources we believe to be accurate, however, we cannot provide any guarantee and we accept no liability for any errors or omissions (including but not limited to a property's land size, floor plans and size, building age and condition). Interested parties should make their own inquiries and obtain their own legal advice.
The Vendor's Statement (Form 1), the Auction Contract and the Conditions of Sale will be available for perusal by members of the public - (A) at our office located at 78-80 North East Road, Walkerville for at least 3 consecutive business days immediately preceding the auction; and (B) at the place at which the auction is to be conducted for at least 30 minutes immediately before the auction commences.
RLA 313174
