Discover a Refurbished Gem in the Heart of Ingle Farm!
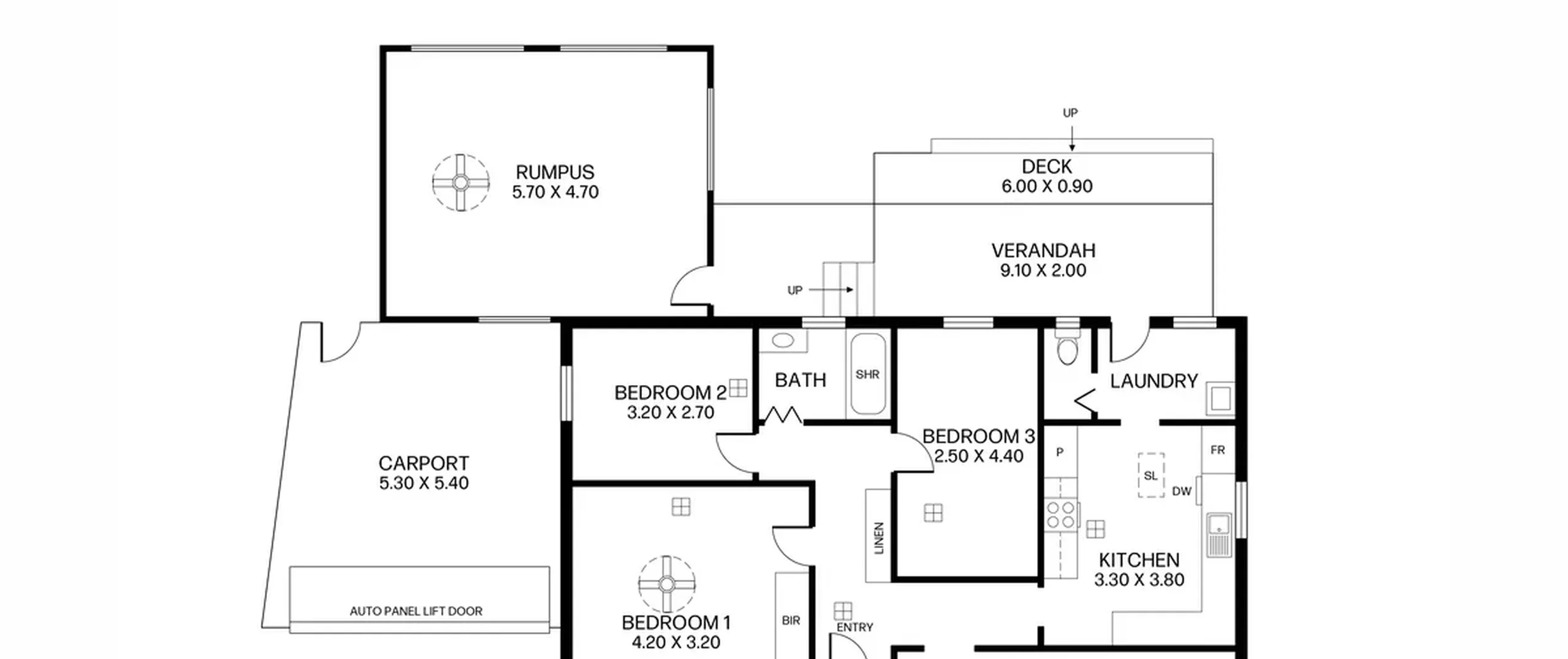
Set on a generous 640sqm (approx.) allotment, this beautifully updated three-bedroom home offers versatile living spaces, a modern kitchen, and a dedicated rumpus area, making it perfect for families, investors, or entertainers alike. With its spacious layout and convenient location, this property is move-in ready, combining comfort with ample room for play and relaxation.
Step inside to experience a thoughtfully designed floorplan where natural light and charming timber floorboards flood the open-plan lounge and dining areas. The sleek, modern kitchen features quality cabinetry, a dishwasher, and an electric cooktop—perfect for home chefs.
For those who enjoy the sunshine, the seamless transition to the rear deck with a verandah creates an ideal spot for outdoor entertaining or relaxation while overlooking the expansive garden. A shed and a well-crafted rumpus room provide even more space for entertaining, a home office, or extra storage.
This is an exceptional opportunity to secure a home that ticks every box. With a perfect blend of contemporary style and practical living, this pure delight is sure to impress astute buyers.
Features that make this home special:
- Master bedroom with ceiling fan and built-in robe
- Two additional bedrooms
- Spacious lounge and dining room with ceiling fan and air-conditioner
- Updated kitchen with electric cooktop, dishwasher, and ample cupboard and bench space. Provision for changing to gas is available, as gas lines are already in place
- Original bathroom with bath/shower + separate toilet
- Separate laundry with hallway linen storage
- Outdoor entertaining deck with verandah, a perfect setting for your morning coffee
- Shed
- Rumpus room, perfect for an additional living area, entertaining, or a home office
- Ducted air-conditioning
- Garage with automatic panel lift door, plus additional off-street parking in the driveway
Ideally located within close proximity to Ingle Farm Shopping Centre, a variety parks and public transport options. Standing directly opposite North Ingle Farm Primary School and a short distance from an array of other schools. Only minutes away from all the shopping and entertainment that Tea Tree Plaza has to offer. All this and the added bonus of the Adelaide CBD less than 15.7kms (approximately) away.
All information provided has been obtained from sources we believe to be accurate, however, we cannot provide any guarantee and we accept no liability for any errors or omissions (including but not limited to a property's land size, floor plans and size, building age and condition). Interested parties should make their own inquiries and obtain their own legal advice.
The Vendor's Statement (Form 1), the Auction Contract and the Conditions of Sale will be available for perusal by members of the public - (A) at our office located at 78-80 North East Road, Walkerville for at least 3 consecutive business days immediately preceding the auction; and (B) at the place at which the auction is to be conducted for at least 30 minutes immediately before the auction commences.
RLA 313174
