Low Maintenance, Contemporary Lifestyle Living!
Whether you are starting out, slowing down or looking to invest, this low maintenance and secure home is sure to capture your attention!
Closely located to Walkley Park and only a stone’s throw away from Kentish Green, this well-maintained and secure three-bedroom home offers a light and bright open plan living area that flows to the sunny outdoor area.
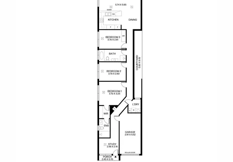
An open plan kitchen, dining and living will be the heart of your day to day living, with a sleek white kitchen, stainless steel appliances and gas stovetop and is complete with ample cupboard and bench space plus breakfast bar!
Perfect for investors looking to add to their portfolio, downsizers looking for a low maintenance lifestyle or the first home buyer looking to enter the market.
Features that make this home special:
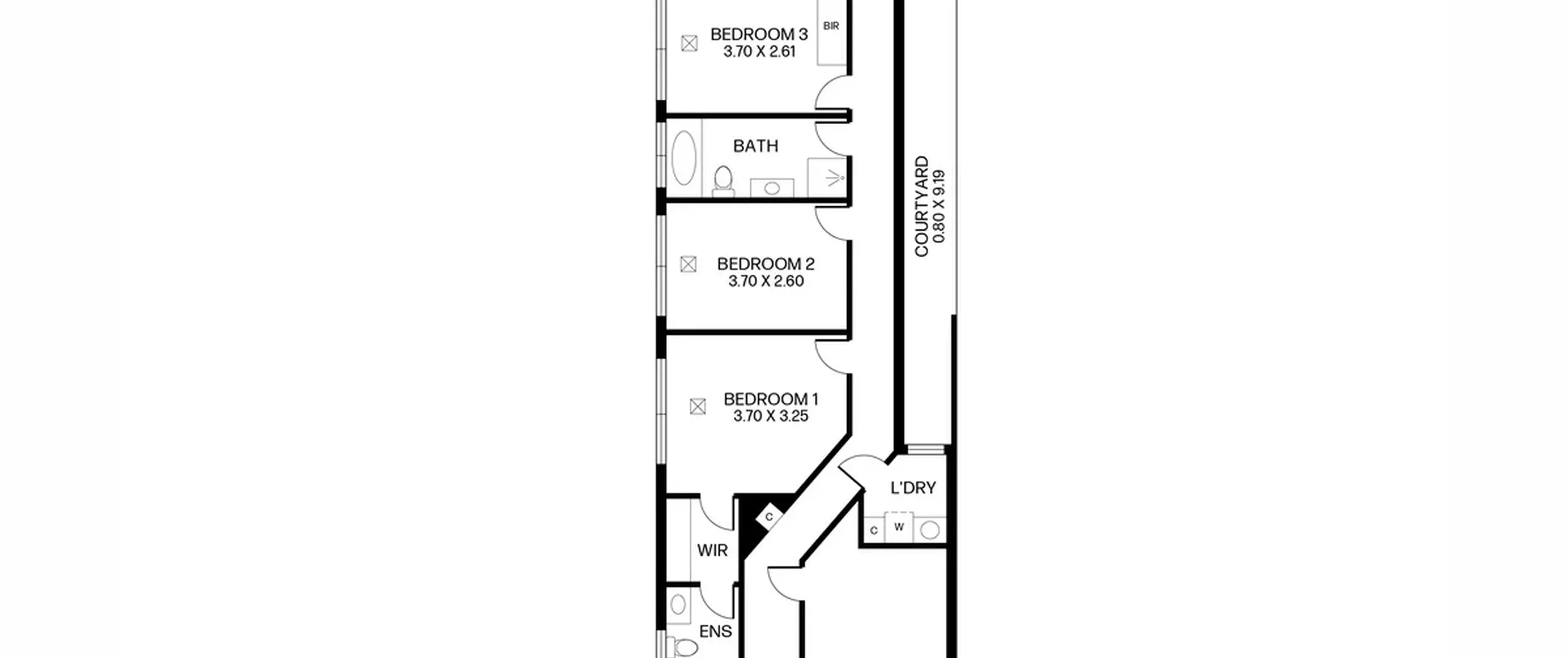
- Large master bedroom with walk-in robe and ensuite
- Generous sized bedrooms 2 and 3, bedroom 3 with a built-in robe
- Light filled, open plan living and dining area with glass sliding doors opening to the backyard
- Sleek white kitchen with quality stainless steel appliances, gas cooktop, dishwasher, ample bench space, pantry and breakfast bar
- Sparkling main bathroom with floor-to-ceiling tiles and separate bath and shower
- Separate laundry with storage space
- Study area
- Ducted air conditioning
- Private and secure rear yard
- Rainwater tank
- Single garage with automatic roller door and direct internal access
- Currently tenanted to July 2023 at $400 p/w
Ideally located a short distance away from Ingle Farm Shopping Centre and all the shopping and entertainment that Tea Tree Plaza has to offer. A variety of schools, parks and public transport options are nearby. All this and the added bonus of the Adelaide CBD just 13km (approximately) away.
For further information please contact John Ktoris on 0438 945 704 or 8269 7711 (office).
All information contained herewith, including but not limited to the general property description, price and the address, is provided to Boffo Real Estate by third parties. We have obtained this information from sources we believe to be reliable; however, we have not verified and do not guarantee its accuracy. The information contained should not be relied upon and you should make your own enquiries and seek advice in respect of this property or any property on this website.
RLA 313174
