Generous 707sqm Allotment with a 21.34m Frontage!
When location counts you can't go past this rare and exciting opportunity! Currently standing is a light filled three-bedroom home, complete with an expansive rear yard, garage with mechanics pit, external rumpus room and ample room for your caravan, boat or trailer. Located directly across from a reserve and only a short walk from Rowe Park that includes a playground and large lawn area for the kids and pets to enjoy.
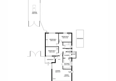
Set on a large allotment of 707sqm (approximate) with a wide frontage of 21.34m (approximate). This home is sure to appeal to first home buyers looking to get into the market, families looking for convenience and room to play, investors looking to rent out and reap the rewards or redevelop (subject to council consent).
Features that make this home special:
- Three good sized bedrooms
- Bedroom one and two with built-in robes
- Bedroom three with split system air conditioner
- Light filled living room with wall unit air conditioner
- Original kitchen with ample cupboard and bench space
- Neat and tidy bathroom with separate bath and shower + separate toilet
- Spacious laundry with external access
- Expansive rear yard
- External rumpus room
- Large separate garage with pit for the car enthusiast
- Open space for car parking behind gate for added security
Ideally located within close proximity to Ingle Farm Shopping Centre, a variety of schools, parks and public transport options. Only minutes away from all the shopping and entertainment that Tea Tree Plaza has to offer. All this and the added bonus of the Adelaide CBD less than 13kms (approximately) away.
Note: All grassed areas are for illustration purposes only.
For further information please contact John Ktoris on 0438 945 704 or 8269 7711 (office).
All information provided has been obtained from sources we believe to be accurate, however, we cannot provide any guarantee and we accept no liability for any errors or omissions (including but not limited to a property's land size, floor plans and size, building age and condition). Interested parties should make their own inquiries and obtain their own legal advice.
The Vendor's Statement (Form 1), the Auction Contract and the Conditions of Sale will be available for perusal by members of the public - (A) at our office located at 78-80 North East Road, Walkerville for at least 3 consecutive business days immediately preceding the auction; and (B) at the place at which the auction is to be conducted for at least 30 minutes immediately before the auction commences.
RLA 313174
