Explore the Potential - 605sqm Corner Block!
A prime opportunity exists to secure this fantastic well-maintained family home situated on a generous 605sqm (approximate) corner block with a huge 30.4m (approximate) frontage onto Bourke Avenue and a 19.5m (approximate) frontage onto Wentworth Drive. Boasting spacious internal living and plenty of natural light throughout, making this the perfect property to: Renovate and add your own touches, rent out as a great investment, redevelop and renew in an ever growing area - the choice is yours (all subject to council consent)!
Additionally providing plenty of room for your caravan, boat or trailer. Astute buyers will surely be impressed with this well maintained property and the potential to add value.
Features that make this home special:
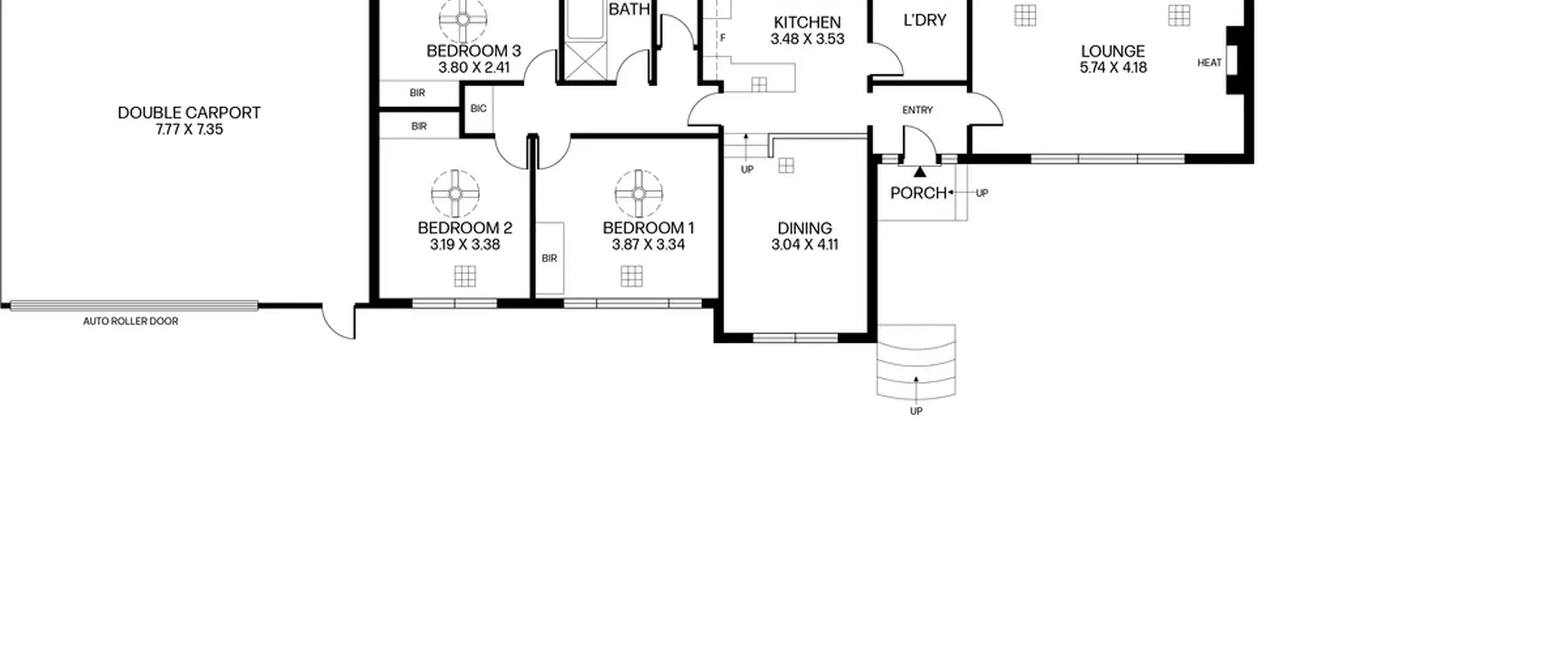
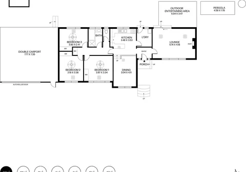
- Master bedroom with built-in robe and ceiling fan, featuring timber flooring
- Bedroom 2 and 3 both of good size, complete with built-in robes, ceiling fans and timber flooring
- Well-appointed kitchen with gas cooktop, ample cupboard and bench space, downlights and slate flooring
- Light-filled dining room adjacent kitchen area
- Spacious lounge room featuring a gas heater, downlights and access to the outdoor entertaining area
- Neutral main bathroom with separate bath and shower
- Separate toilet for convenience
- Separate laundry with access to rear yard
- Undercover outdoor entertaining area
- Reverse cycle heating and cooling
- Automatic roller shutters to front windows
- Garden shed
- Double carport with automatic roller door
- Established and low maintenance front and rear garden
- Solar electrical system with 16 panels
Ideally located a short distance away from Ingle Farm Shopping Centre and all the shopping and entertainment that Tea Tree Plaza has to offer. A variety of schools, parks and public transport options are nearby. All this and the added bonus of the Adelaide CBD just 15km (approximately) away.
For further information please contact John Ktoris on 0438 945 704 or 8269 7711 (office).
RLA 200591
The Vendor's Statement (Form 1), the Auction Contract and the Conditions of Sale will be available for perusal by members of the public -
(A) at our office located at 87 North East Road, Collinswood for at least 3 consecutive business days immediately preceding the auction; and
(B) at the place at which the auction is to be conducted for at least 30 minutes immediately before the auction commences.
