777sqm corner block with subdivision approval!
When location counts you can't go past this rare and exciting opportunity! Located directly across from a reserve, this large corner block allotment of 777sqm (approximately) has a combined frontage of 26m (approximately) onto Wilmot Street and a combined frontage of 26m (approximately) onto Birkin Avenue. This home offers the new owner a golden opportunity to renovate and add value, restore and rent out, redevelop, subdivide and renew: the choice is yours (all subject to council consent)!
Vendor has disclosed subdivision approval, plan attached in photos. (STCC)
Features that make this home special:
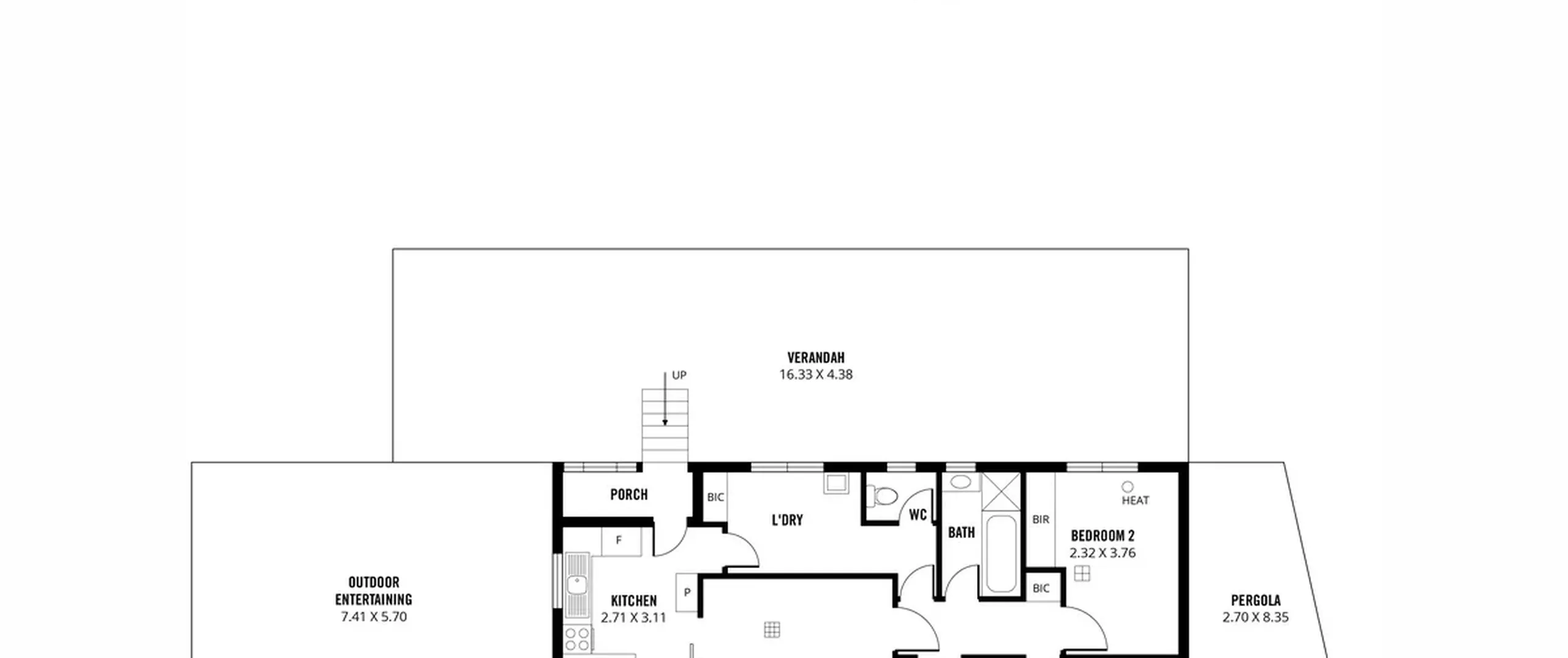
- 3 good sized bedrooms with built-in robes, bedroom 1 with split system air conditioner
- Separate lounge with ceiling fan
- Kitchen with ample bench and cupboard space
- Dining area adjacent kitchen with ceiling fan
- Main bathroom with separate bath and shower + separate toilet
- Separate laundry
- Expansive undercover outdoor entertaining area
- Fully fenced, expansive rear yard with garden shed
- Double garage and single carport
- Ample off-road parking
Ideally located within close proximity to Ingle Farm Shopping Centre, a variety of schools, parks and public transport options. Only minutes away from all the shopping and entertainment that Tea Tree Plaza has to offer. All this and the added bonus of the Adelaide CBD less than 13kms (approximately) away.
For further information please contact John Ktoris on 0438 945 704 or 8269 7711 (office).
RLA 200591
