Spacious Family Home with Endless Potential in Hope Valley!
Discover space, comfort, and endless potential in this cherished family home, built circa 1975 (approx.) and set on a generous 683m² (approx.) allotment with a 19.50m frontage (approx.). Well-maintained and brimming with character, this home offers the perfect blend of timeless charm and modern potential—move in as is, update to your taste, or enjoy its classic appeal, with the added bonus of Korong Reserve at the rear.
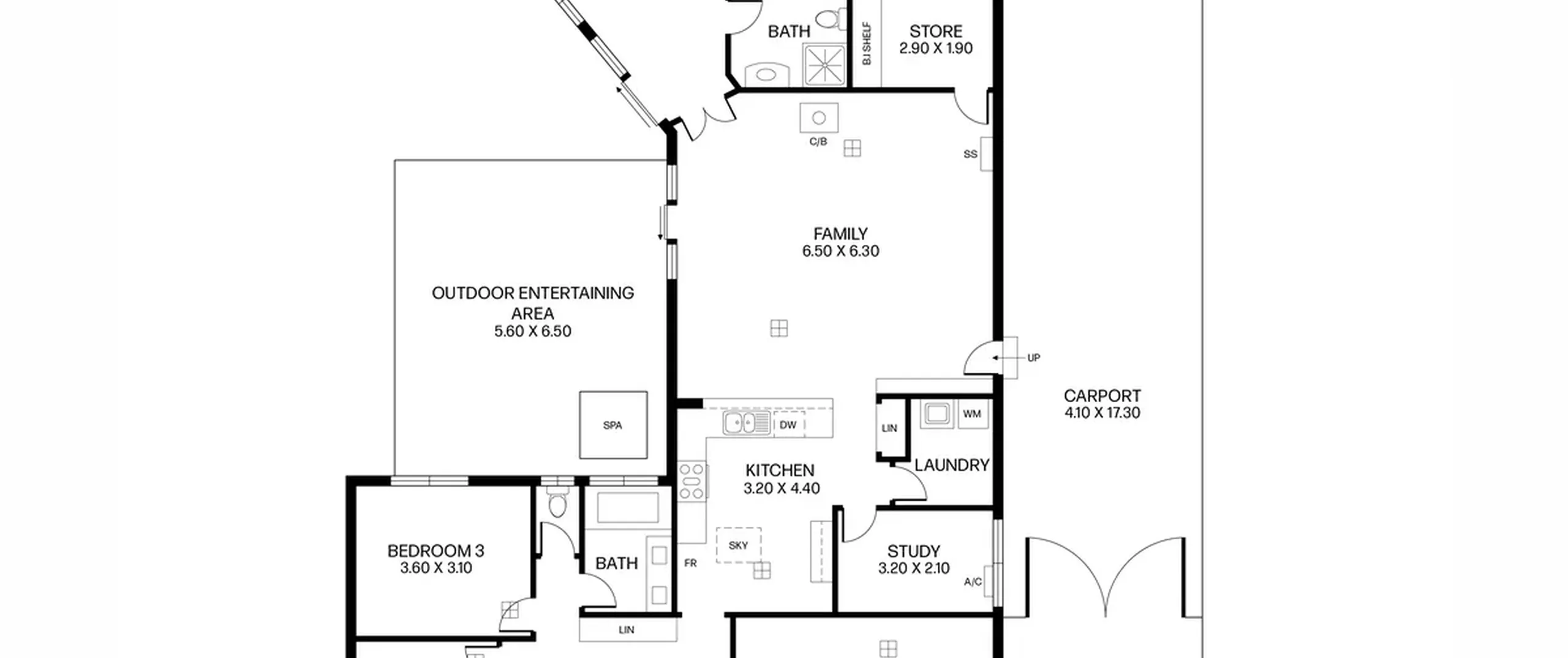
Inside, you'll find three spacious bedrooms, two bathrooms—including a recently renovated one—and a rear games room, added in circa 1990 (approx.) which could be used as a fourth bedroom, offering plenty of space for the whole family. The welcoming lounge flows seamlessly into the kitchen and expansive family room, which is complete with a combustion heater and split system air-conditioning. A separate study room further enhances the home's comfort and versatility.
Step outside to a sprawling backyard, featuring a covered verandah with a spa, low-maintenance greenery, a double-length carport, and two sheds—ideal for vehicle and general storage.
This property presents exceptional value and a wealth of opportunity. Whether you plan to move in and enjoy its warmth, renovate to make it your own, or rent it out and capitalise on its potential, this home offers flexibility and promising future prospects.
Features that make this home special:
- Three spacious bedrooms, bedrooms 1 and 2 with built-in robes
- Light-filled lounge room
- Functional kitchen with ample storage and wide free-standing cooker
- Large family room with combustion heater and split-system air-conditioner
- Games room with tiled flooring and direct access to additional bathroom, making it a great option for a fourth bedroom
- Study/home office with built in desk
- Renovated main bathroom with both shower, bath and double basin vanity
- Separate toilet for added convenience
- Paved undercover entertaining area with spa and blinds
- Expansive backyard with established greenery—plenty of room for kids and pets to play
- 2x sheds for additional storage
- Double-length carport with gates
Located close to Anstey Hill where you can explore the walking trails and wildlife. Only a short drive to the Hope Valley Reservoir perfect for fitness activities, pets and kids to enjoy. Just minutes away from Hope Valley Shopping Centre, a variety of sought-after schools, parks and public transport options including the city via the O'Bahn. Additionally, in close proximity to all the shopping and entertainment that Westfield Tea Tree Plaza has to offer! Plenty of great local restaurants nearby.
All information contained herewith, including but not limited to the general property description, price and the address, is provided to Boffo Real Estate by third parties. We have obtained this information from sources we believe to be reliable; however, we have not verified and do not guarantee its accuracy. The information contained should not be relied upon and you should make your own enquiries and seek advice in respect of this property or any property on this website.
Looking to purchase this property as an investment? Speak to our Property Management team to see how we can assist.
RLA 313174
