An Entertainer's Dream!
This stunning home has been finished with quality fixtures and fittings and is set on a generous low maintenance allotment and will appeal to the most astute buyers. Thoughtfully designed, the home provides year round entertaining options with perfect natural flow from the large internal open plan living area to the impressive outdoor entertaining area.
Features that make this home special:
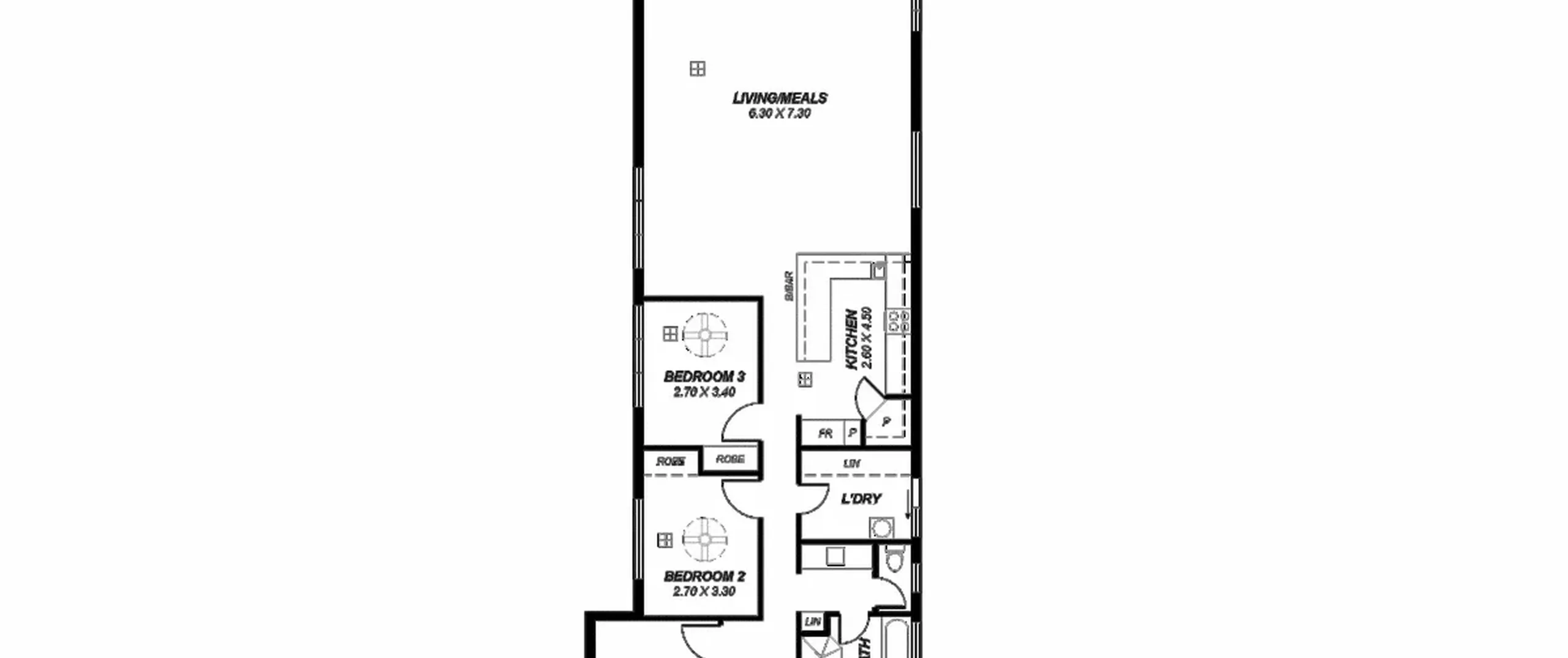
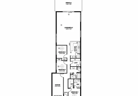
- Master bedroom with walk-in robe, ceiling fan and ensuite
- Spacious bedrooms 2 and 3, both with built-in robes and ceiling fan
- Large, light filled living and meals area with vaulted ceilings
- Stunning kitchen with stone benches, gas cooktop, walk-in pantry and ample bench and cupboard space
- Sparkling main bathroom with separate bath and shower + separate toilet
- Separate laundry with built-in linen cupboard
- Ducted reverse cycle air conditioning throughout
- LED lighting throughout
- Expansive undercover outdoor entertaining area with water feature
- Garden shed
- Low maintenance front and rear yard
- Single garage with direct internal access and automatic panel lift door
- Built in approximately 2008
This fantastic location is all about the lifestyle with many great amenities close by. Tea Tree Plaza Shopping Centre, quality local schools, sporting facilities, public transport options and the Modbury Hospital are all only a short drive away. All this and being in a quiet leafy street in the surrounds of established and newly developed properties with house proud owners, the position is simply perfect!
For further information please contact Fadi Oudih on 0455 999 007 or 8269 7711 (office).
RLA 200591
