Family-Friendly Comfort in the Heart of Holden Hill
Set on a manageable 362m2 (approximate) allotment, this stylish low-maintenance 2010 built Hickinbotham home is designed to impress, offering a well-considered layout and a seamless flow between indoor and outdoor living.
Freshly painted throughout plus 2.7m high ceilings and an abundance of natural light streaming through large windows, the home embraces a calming palette enhanced by stylish finishes throughout. At its centre, a spacious open-plan kitchen, living and dining area creates the ideal setting for both entertaining and relaxed family living. The kitchen combines functionality with elegance, offering generous storage, stainless steel appliances and premium contemporary finishes perfectly suited to modern lifestyles.
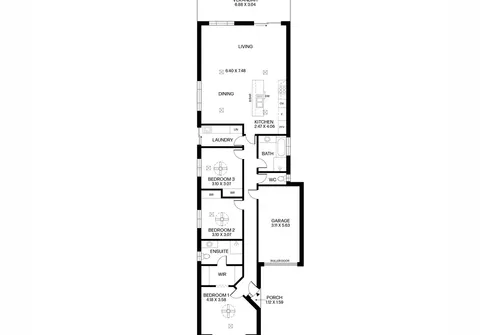
The spacious master bedroom delivers privacy and a sense of everyday luxury, complete with a charming bay window dressed with quality curtains, plus a private ensuite. Two additional bedrooms with built-in robes offer versatility for a growing family or accommodating guests. All bedrooms have been freshly carpeted with premium plush carpets for a quality look and feel during those colder months.
Designed for year-round enjoyment, the outdoor space offers thoughtful features that make entertaining and everyday living a breeze. With established gardens and a practical, inviting interior, all that’s left to do is move in and embrace the relaxed, well-connected lifestyle.
Features that make this home special:
- Master suite featuring bay window, ceiling fan, walk-in robe and private ensuite with shower and toilet
- Bedrooms two and three both complete with built-in robes and ceiling fans
- Light-filled open plan living, dining and kitchen zone – ideal for year-round entertaining
- Modern kitchen boasting a breakfast bar, dishwasher, puratap, gas cooktop, oven and ample storage space
- Spacious central bathroom with shower, bath and separate toilet
- Quality and updated laundry with ample built-in cupboards and overhead storage also with direct outdoor access
- Undercover, paved verandah overlooking the backyard
- Secure single garage with extra height automatic roller door, fold away workbench plus higher storage shelving and internal pedestrian access
- Low-maintenance front and rear gardens
Additional features:
- Wifi enabled reverse cycle ducted air-conditioning
- Freshly painted
- New carpets in bedrooms
- Laundry updated in 2019
- 6.6kw solar system
- Rainwater tank
- Front and rear garden irrigation systems
Perfectly positioned near both the Paradise and Tea Tree Plaza interchanges, this home offers effortless access to a variety of shopping and entertainment options at Westfield Tea Tree Plaza and Hope Valley Shopping Centre. Outdoor enthusiasts will enjoy the nearby sporting grounds, parks and reserves, as well as the Bentley Reserve Dog Park and access to Linear Park all within walking distance. Families are well catered for with quality schooling close by, including Kildare College, Modbury High School, Modbury Preschool to Year 7 and Dernancourt School R–7.
All information contained herewith, including but not limited to the general property description, price and the address, is provided to Boffo Real Estate by third parties. We have obtained this information from sources we believe to be reliable; however, we have not verified and do not guarantee its accuracy. The information contained should not be relied upon and you should make your own enquiries and seek advice in respect of this property or any property on this website.
Looking to purchase this property as an investment? Speak to our Property Management team to see how we can assist.
RLA 313174
