Holden Hill Haven: Unlock Your Dream Home Potential on a Spacious Canvas!
Unleash your creativity and transform this pristine canvas into your own contemporary masterpiece. This three-bedroom home, nestled in the heart of Holden Hill, sits on a spacious traditional allotment spanning approximately 696sqm. Whether you want to add your personal touch or move in and enjoy what’s on offer, the possibilities are endless.
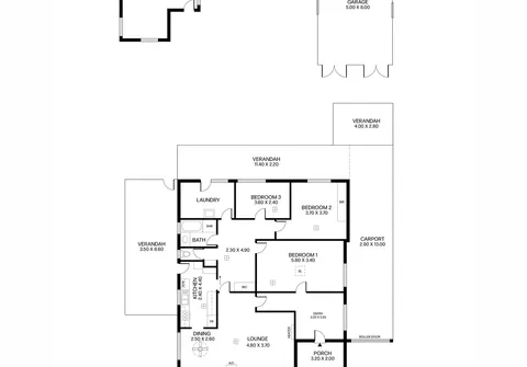
Step inside to discover three generously proportioned bedrooms, providing ample space for rest and relaxation. The comfortable lounge seamlessly flows into an adjoining family and dining area, creating a harmonious atmosphere. The large kitchen exudes timeless charm with its original features. The floorplan is completed by a centrally located bathroom, a walk-through laundry, and a separate toilet for added practicality. At the rear, a large detached rumpus room awaits, offering potential use as a playroom or according to your preferences.
Outside, the property features a vast open rear yard with a large shed for added storage and an extended carport—providing ample space to let your creativity thrive. With an expansive 18.29m (approximate) frontage, this home offers unlimited potential (subject to planning consents), serving as a comfortable and unspoiled starting point to craft the home you've always envisioned in Holden Hill.
Features that make this home special:
- Three generously proportioned bedrooms
- Comfortable lounge room with heating and cooling flowing into an adjoining family and dining area
- Large kitchen with timeless charm and original features
- Centrally located bathroom and separate toilet for practicality
- Walk-through laundry
- Large detached rumpus room at the rear, offering versatile use
- Immaculate open rear yard with a large shed, and extended carport
- Even allotment with expansive 18.29m frontage (approximately)
Superbly located minutes away from all the shopping and entertainment that Westfield Tea Tree Plaza and Hope Valley Shopping Centre have to offer. Various sporting grounds and parks are nearby. Paradise and Tea Tree Plaza interchange are a short drive away for an easy commute to the CBD. Additionally in close proximity to a variety of excellent public and private schools, including Kildare College, Modbury High, Modbury Preschool to Year 7 and Dernancourt School.
All information contained herewith, including but not limited to the general property description, price and the address, is provided to Boffo Real Estate by third parties. We have obtained this information from sources we believe to be reliable; however, we have not verified and do not guarantee its accuracy. The information contained should not be relied upon and you should make your own enquiries and seek advice in respect of this property or any property on this website.
RLA 313174
