Sleek and Stylish, a Low Maintenance Abode!
Whether you are starting out, slowing down or looking to invest, this low maintenance and secure home is sure to impress.
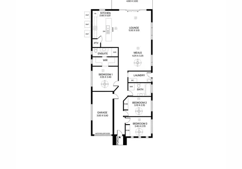
Offering an open plan meals, dining and sleek kitchen including a central island/breakfast bar, walk-in pantry, gas stove top, dishwasher and ample storage space, perfect for the chef of the home. A seamless flow to the outdoor entertaining space and grassed area. Complete with two additional bedrooms, generous in size and well equipped + a spacious main bedroom with dreamy walk-in wardrobe and ensuite.
Perfect for investors looking to add to their portfolio, downsizers looking for a low maintenance lifestyle or the first home buyer looking to enter the market.
Features that make this home special:
- Generous master bedroom with his and hers walk-in robe, and modern ensuite
- Good sized bedrooms 2 and 3, both with built-in robes and ceiling fans
- Open plan lounge and meals area with ceiling fan and double glass sliding doors opening to the alfresco
- Sleek and modern kitchen featuring a suite of stainless-steel appliances including dishwasher, oven and 6-burner gas cooktop, pantry and island bench with breakfast bar
- Modern main bathroom complete with bath and separate shower
- Practical laundry with built-in storage and external access
- Ducted air-conditioning throughout
- Tiled alfresco with plenty of room to host guests
- Low-maintenance backyard complete with 3x rainwater tanks
- Single carport with roller door and internal access
- Currently tenanted on a periodic basis for $400 p/w
Superbly located minutes from O-Bahn link to city and a short distance away from all the shopping and entertainment that Westfield Tea Tree Plaza and Hope Valley Shopping Centre have to offer. Various sporting grounds and parks are nearby. Paradise and Tea Tree Plaza interchange are a short drive away for an easy commute to the CBD. Additionally in close proximity to a variety of excellent public and private schools, including Kildare College, Modbury High, Modbury Preschool to Year 7 and Dernancourt School R-7.
For further information please contact Joshua Faddoul on 0488 555 337 or 8269 7711 (office).
All information contained herewith, including but not limited to the general property description, price and the address, is provided to Boffo Real Estate by third parties. We have obtained this information from sources we believe to be reliable; however, we have not verified and do not guarantee its accuracy. The information contained should not be relied upon and you should make your own enquiries and seek advice in respect of this property or any property on this website.
RLA 313174
