Outstanding Location and Lifestyle
This fantastic low maintenance home offers the perfect lifestyle with many great amenities close by. Set on a 355sqm (approximate) allotment, this home is sure to impress families and first home buyers looking to get into the market and investors looking to add to their current portfolio. With a fantastic street appeal, a modern, neutral decor inside and new flooring throughout, there is nothing to do but simply move in and start enjoying the lifestyle this home offers!
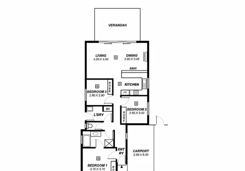
Features that make this home special;
- Large master bedroom with built-in robe and direct access to two-way bathroom
- Good sized bedrooms 2 and 3, both with built-in robe
- Spacious, open plan living and dining with split system air-conditioner and double length sliding doors opening onto the outdoor entertaining area
- Modern kitchen with ample bench and cupboard space and breakfast bar
- Two-way main bathroom with separate bath and shower + separate toilet
- Separate laundry with ample storage space
- Ducted air conditioning throughout
- Freshly painted throughout
- Large verandah, ideal for outdoor entertaining
- Fully fenced, low maintenance rear yard with garden shed
- Single carport + additional off street parking
Ideally located close by to the walking and bike tracks at Delhi Reserve. Only 2km (approximately) to Northgate Shopping Centre and only a few minutes' drive to Gilles Plains Shopping Centre and Greenacres Shopping Centre. Close to public transport options and quality public and private schools. All of this and less than 9km (approximately) to the Adelaide CBD.
For further information please contact Mark Fricker on 0413 000 845, Lalith Rajakaruna on 0438 945 704 or 8269 7711 (office).
RLA 200591
