Outstanding Opportunity
Whether you're looking for an ideal family home with the big secure yard or potential for development, it's all here. Set on a generous 910sqm (approximate) allotment with a 17.95m (approximate) frontage, this rare find in a prime location within close proximity to all amenities sits strategically amongst other quality homes and with an eye for further development (Subject to Council Consent).
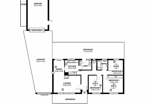
Features that make this home special:
- Large bedroom 1 with built-in robe and ceiling fan
- Good sized bedrooms 2 and 3, both with ceiling fan
- Large, light filled lounge with air conditioner and heater for year round comfort
- Original kitchen
- Dining area adjacent kitchen
- Main bathroom with combined bath and shower + separate toilet
- Separate spacious laundry
- Huge verandah, perfect for outdoor entertaining
- Double length carport with roller door and drive through access to double length garage
- Additional storage room attached to garage
- Huge, fully fenced rear yard with garden shed
Located within walking distance to the recently renovated Gilles Plains Shopping Centre and the new Lightsview community including a future town centre, cycling routes and 15 hectares of public reserves. Positioned close to local parks, schools and public transport options. Just a short drive to all the shopping and entertainment that Tea Tree Plaza has to offer. All this and 10kms (approximately) to Adelaide CBD.
For further information please contact Lalith Rajakaruna on 0438 945 704 or 8269 7711 (office).
RLA 200591
