Tree Top Views!
Perfectly positioned opposite parklands is this architecturally designed, spacious 3 bedroom family home. Built in 1970 (approximately) and situated on a generous 720sqm (approximately) allotment. Providing the new owners with the perfect opportunity to add their own personal touches and refurbish.
Features that make this home special;
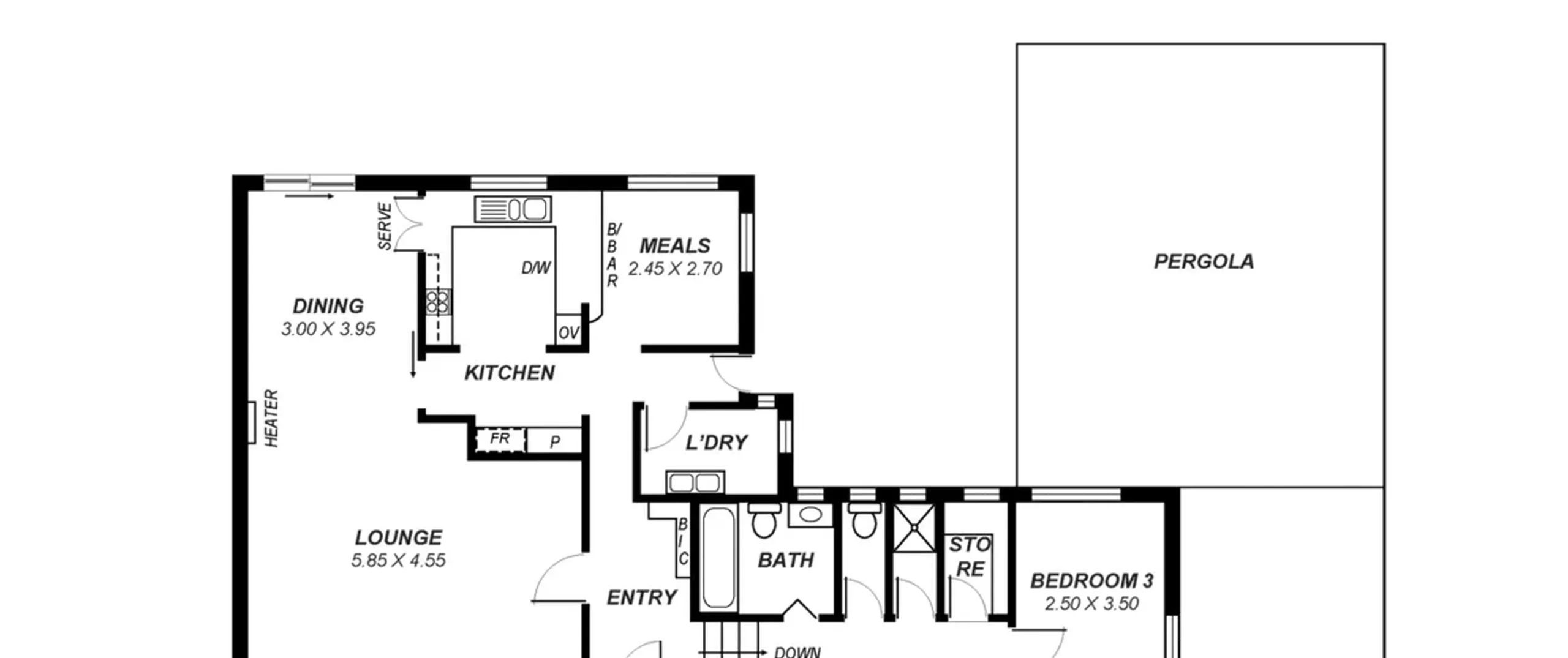
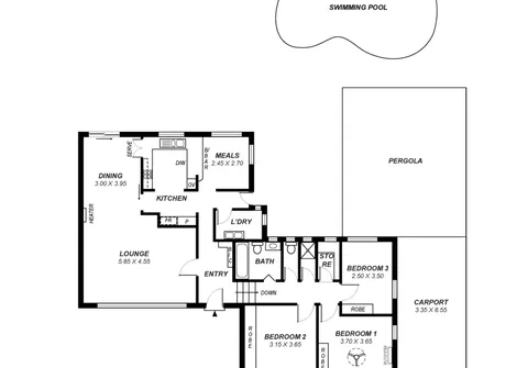
- Master bedroom with built-in robe, ceiling fan and split system reverse cycle air conditioner
- Spacious bedrooms 2 and 3, both with built-in robes
- Generous, light filled lounge/dining with picture windows with fantastic views
- Functional kitchen with ample bench and storage space
- Separate informal meals area with garden outlook
- Study room or storage area
- Neat bathroom with bath and w/c + separate shower room
- Valuable second w/c
- Good sized laundry
- Terraced manicured rear garden
- Sparkling in-ground concrete swimming pool
- Extensive undercover outdoor entertaining area
- Garden shed
- Single carport with automatic roller door
This distinctive home offers the opportunity to enjoy an outlook living style with its tree and park settings, pool and close proximity to Linear Park.
In close proximity to a variety of public and private schools, shopping options and public transport. All this and only 400m (approximately) to beautiful Linear Park and walking trails.
For further information please contact Geoff Carlaw on 0487 487 383 or 8269 7711 (office).
RLA 265613
