A Timeless Haven of Comfort and Charm!
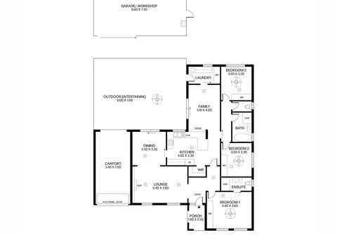
Explore this cherished solid brick home with a versatile layout, nestled on a spacious 674sqm (approximate) allotment with a large internal living space comprising of three bedrooms, two bathrooms and valuable drive through car parking. With multiple living spaces, this home boasts a host of quality added features, modern flooring, and timeless finishes throughout, creating a haven of comfort and style.
Large windows gracefully illuminate the expansive lounge and dining room with natural light, creating an inviting space for gatherings and relaxation. This family-friendly abode offers ample room for all your lifestyle needs, ensuring comfort and convenience at every turn. Alternatively, let your culinary creativity shine in the adjacent kitchen and dining area, perfect for entertaining family and friends. The stylish kitchen offers sweeping granite benches, modern appliances and a gas cooktop. A separate family room compliments the functionality of the floorplan offering an additional space to relax and watch your favourite movie.
Step outside to enjoy the exceptional outdoor entertaining space with expansive paved and undercover area—perfect for summer gatherings. Additionally, the property offers ample storage, off-street undercover parking and a garage, making it ideal for outdoor enthusiasts or those needing a workshop area.
Don't miss this chance to make this stunning property your own. Whether you seek a perfect family home, first-home or a sound investment, this opportunity is not to be missed.
Features that make this home special:
- Master bedroom with built-in robe, ceiling fan and sparkling ensuite complete with floor to ceiling tiles
- Two additional bedrooms, both with ceiling fans and built-in robes
- Light filled lounge room with gas heater, adjacent to dining area
- Additional family room with sliding door access to outdoor entertaining area
- Modern kitchen with Smeg gas cooktop, oven and dishwasher, granite stone benchtops, puratap, walk-in pantry and ample storage space
- Main bathroom with free standing bathtub, floor-to-ceiling tiles, plus separate toilet
- Laundry with ample storage space and external access
- Ducted reverse cycle air conditioning throughout
- Expansive undercover paved outdoor entertaining area with ceiling fan, perfect for outdoor entertaining
- Well-manicured garden and lush green lawn
- Large, fully insulated shed with 3 phase power and additional storage
- Single carport with automatic panel lift door and drive through access to rear garage/workshop
Superbly located only minutes away from all the shopping and entertainment that Westfield Tea Tree Plaza has to offer. In close proximity to the wonderful Linear Park trail, Black Hill Conservation Park. It's a haven for nature lovers, with the Hope Valley Reservoir nearby for leisurely strolls. Additionally close by to a variety of excellent schools, including Highbury Primary, St Ignatius' College and Kildare College, and public transport options including the O-Bahn at Tea Tree Plaza Interchange
All information contained herewith, including but not limited to the general property description, price and the address, is provided to Boffo Real Estate by third parties. We have obtained this information from sources we believe to be reliable; however, we have not verified and do not guarantee its accuracy. The information contained should not be relied upon and you should make your own enquiries and seek advice in respect of this property or any property on this website.
The Vendor's Statement (Form 1), the Auction Contract and the Conditions of Sale will be available for perusal by members of the public - (A) at our office located at 78-80 North East Road, Walkerville for at least 3 consecutive business days immediately preceding the auction; and (B) at the place at which the auction is to be conducted for at least 30 minutes immediately before the auction commences.
RLA 313174
