Discover Your Private Sanctuary Amidst the Adelaide Foothills with Linear Park Right in Your Backyard!
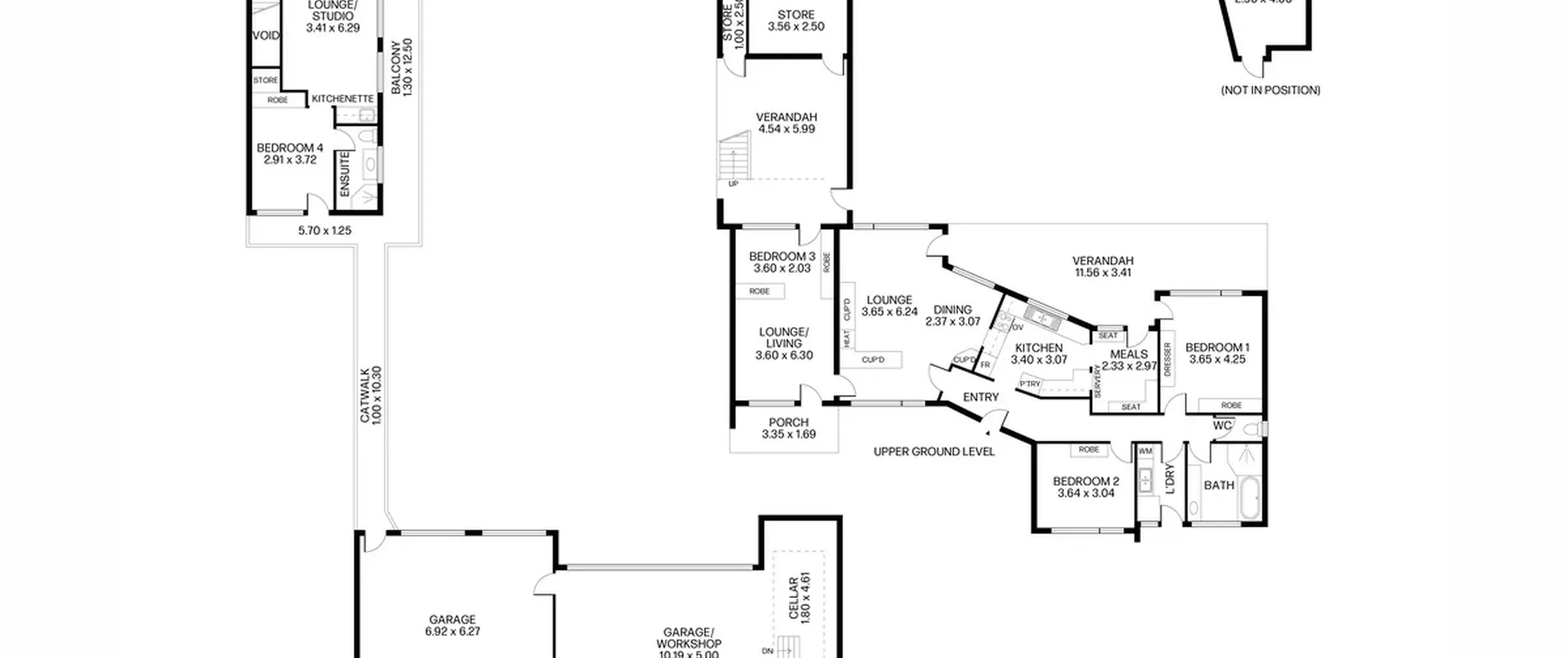
Experience the epitome of spacious living in the highly sought-after suburb of Highbury with this expansive and versatile home spanning over 500sqm (approximately) of living space. What sets this residence apart is its array of secluded living sanctuaries, offering the perfect escape amidst breathtaking foothill views. Additionally, enjoy the added benefit of direct access to Linear Park River Torrens at the rear of the property, enhancing the allure of this remarkable home.
A self-contained flat, complete with a bedroom, kitchenette, living space, and bathroom, provides an idyllic guest retreat with a picturesque balcony. Additional living spaces include a games room, rumpus room, and studio, complemented by lush gardens, a pool, and sought-after character features like timber panelling, stone accents, brick feature walls and so much more.
Upon entering through the main doors, you're greeted by three bedrooms, a kitchen and meals area, and a lounge and dining room. The kitchen boasts views of the expansive rear yard and hills, while the convenience of this space is further enhanced by an additional lounge/living room, original main bathroom, separate toilet, and laundry.
Explore the spacious 1040m2 (approximately) allotment and discover a large studio with an adjoining bathroom, a vintage-style pool, and ample storage options. Car and storage enthusiasts will appreciate the large garage with a workshop, while the extensive backyard beckons those with a green thumb. Adding to its allure, the property features a cellar, ideal for storage purposes.
Elevate your living experience beyond the ordinary – this residence is more than just a home; it's an elevated canvas, ready for you to dive in and enjoy. Infuse your unique style into every corner of this spacious country-style haven, creating a retreat that exceeds expectations.
Features that make this home special:
- Self-contained flat offering a 4th bedroom, kitchenette, living space, and bathroom
- Phenomenal views from the balcony of the Adelaide foothills
- Games room and rumpus room with the addition of a kitchen, toilet, fireplace and cellar
- Separate large studio room with adjoining bathroom/laundry and built-in cabinetry
- Three bedrooms with robes
- Main kitchen and meals area with separate lounge and dining room
- Kitchen with views of rear yard and hills
- Additional lounge room, original main bathroom, separate toilet, laundry
- Vintage-style pool
- Ample storage options including garage with workshop
- Extensive backyard for gardening enthusiasts
- 2x undercover verandahs
- Cellar
Conveniently situated just minutes from the vibrant shopping and entertainment hub of Westfield Tea Tree Plaza, this home offers easy access to all the amenities you could desire. Embrace the beauty of nature with the nearby River Torrens Linear Reserve and Black Hill Conservation Park, while enjoying seamless connectivity with public transport options including the O-Bahn at Tea Tree Plaza Interchange. Families will appreciate the proximity to esteemed educational institutions such as Highbury Primary, St Ignatius' College, and Kildare College. With everything you need right at your doorstep, this is truly a location that combines convenience with lifestyle excellence.
All information contained herewith, including but not limited to the general property description, price and the address, is provided to Boffo Real Estate by third parties. We have obtained this information from sources we believe to be reliable; however, we have not verified and do not guarantee its accuracy. The information contained should not be relied upon and you should make your own enquiries and seek advice in respect of this property or any property on this website.
RLA 313174
